地区不限
北京
上海
天津
重庆
安徽
福建
甘肃
广东
广西
贵州
海南
河北
河南
黑龙江
湖北
湖南
吉林
江苏
江西
辽宁
内蒙古
宁夏
青海
山东
山西
陕西
四川
西藏
新疆
云南
浙江
台湾
香港
澳门
国外
类型不限
建筑设计师
室内设计师
景观设计师
其他个人会员
建筑设计公司
室内设计公司
景观设计公司
家装公司
公装公司
其他公司
全部设计师
全部设计公司
级别不限
会员
推荐会员
精英设计师
建案例
传图片
写文章
登陆
|
注册
|
帮助
用户名:
密码:
验证码:
自动登陆
(网吧勿用)
免费注册
找回密码
·
KUMO KUMO新总部办公空间
·
中国国际家具展览会30周年启幕
·
米兰国际家具展│构建面向未来的世界
·
北京——板泉之野民宿与营地
·
奥地利Gro?weikersdorf社区中心
·
提高空间灵活性,激发市民自豪感
·
Mayora总部食堂,在花园中就餐
·
[最新]声学遇见美学大赛启动
·
[最新]工厂造零件现场拼房子
·
[最新]多地推进住宅"上保险"
首页
档案
图片
案例
文章
留言
收藏
关注/粉丝
写信
孙黎明的设计师家园
http://822013.china-designer.com/
委托设计
推荐好友
收藏网址
为了您更好的使用本网站,请您不要禁止javascript。
我的档案
目前状态:
|
|
家园号:822013
姓名:孙黎明 [江苏 ]
设计师类型:室内设计师
查看详细资料
在线呼叫
我的案例
展开所有案例
所有案例
(11)
按照案例性质分类
相关案例
爱莲说
2016/9/15
沈阳绿波廊永乐汇商务会馆
2016/9/15
沈阳绿波廊永乐汇商务会馆
2016/9/15
深圳碧海湾高尔夫翡翠铭汇练习场
2016/9/14
迈康国际健身会所
2016/9/14
我的案例
虹桥坊温泉
标签:
洗浴中心
请选择
闲静轻松
2016/9/14 15:32:01
评论
(0)
浏览
()
收藏
(0)
上一项
下一项
案例名称
虹桥坊温泉
案例投资总额
8000 万元
作者
孙黎明
设计是否选用
竣工项目案例
设计类型
室内设计
案例类型
休闲健身空间
案例所在地
江苏
案例面积
10500 平方米
所用材料品牌
古堡灰石材、意大利木纹石材、黄麻凿毛石材、银灰洞石、透光云石、木纹铝格栅、酸洗玻璃、拉丝镀铜金属板、陶瓷马赛克、白像木饰面、竹子、藤编肌理板、草编墙纸
设计说明
A、与同类竞争性物业相比,作品独有的设计策划、市场定位:
与一贯唯功能而设计的温泉业态不同,本项目空间设计力图创造一个时尚调性、强体验感、有完整空间叙事脉络的休闲气质业态,与日式的“以小见大”不同
更多说明
A、与同类竞争性物业相比,作品独有的设计策划、市场定位:
与一贯唯功能而设计的温泉业态不同,本项目空间设计力图创造一个时尚调性、强体验感、有完整空间叙事脉络的休闲气质业态,与日式的“以小见大”不同,本空间设计坚持“大中见精、伟中求雅、雍容里现知性、高贵中求亲和、人文中显国际化”路线,一丰富的空间表情和复合的业态结构,满足广泛的城市中坚人群身心需求。
B、与同类竞争性物业相比,作品在环境风格上的设计创新点:
整体业态空间的环境塑造上由仪式感和“水”表情共同完成,木纹铝格栅的大面积采用不仅缔造了大空间的恢弘仪式感和空间气场,更流溢着自然、生态的感性视觉。而多种表现手法下的“水”造型,和石材肌理、纹饰即暗示业态属性,又丰富着生机活性的空间表情。
C、与同类竞争性物业相比,作品在空间布局上的设计创新点:
体量巨大、功能空间类别众多,空间布局很容易形成平均化、散点化,缺失聚焦效应,为此,在整体把控上,材色的浑然整体、空间架构的阵列秩序完成了基调的一脉统一,而主次之间、个性塑造在空间布局上的考区分,则通过业态类型的不同而因势利导,比如负一层的动态型业态空间的灵动多样、一层动静交融业态的大小参差、二层静态业态的景致安谧,而公区部分则让位于舒适感、休闲意味,普遍大尺度、大视野、大块面。
D、与同类竞争性物业相比,作品在设计选材上的设计创新点:
业态的专业要求(耐湿、防潮、防火、防腐),以及体量巨大功能空间众多,对石材、玻璃、防腐金属、陶瓷类材质使用率很高,为不使整个空间因材料的同质化而缺乏活性,对石材的选择遵循多样性原则,通过差异化的色泽、质感、肌理、实透的变化,结合部分生态、仿生态材料(木竹藤等)的综合化空间表现,创造出丰富、灵动、感染力强劲的空间表情和气质。
E、与同类竞争性物业相比,作品在投入运营后的出众经营效果:
以温泉为卖点,凭借恢弘高尚的业态形象,与惬意舒适的休闲空间体验,本项目营业以来关注度持续上行。本项目虽隶属于虹桥坊温泉酒店,但其业态品质和影响力,亦然超越了从属配套的地位,成为瘦西湖片区最瞩目的旅游、消费地标。
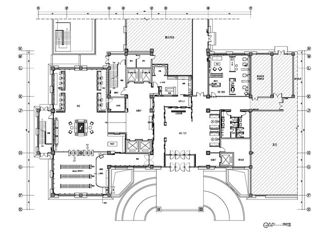
1一层大厅
2一层入口大厅
3一层入口大厅休息区
4一层换鞋大厅
5负一层懒人区
5负一层岩盘区
7负一层餐厅
8负一层餐厅
9负一层餐厅包厢
10负一层休息区走道
11负一层阅读区
12负一层美甲室
13负一层休息大厅
14负一层区入口
15负一层浴区
16负一层室外风吕
17负一层室外风吕局部
17负一层岩盘浴
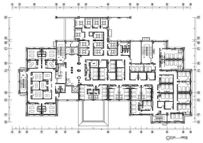
18二层休息室
19二层棋牌室
20局部景观
21局部景观
01一层平面
02二层平面
03负一层平面
我的更多案例
匿名:
验证码:
案例评论
共1页 首页 上一页
1
下一页 末页
收藏目录
:
全部