易装修搜索
  建案例 传图片写文章 登陆  |  注册  |  帮助   
   ·KUMO KUMO新总部办公空间        ·中国国际家具展览会30周年启幕        ·米兰国际家具展│构建面向未来的世界        ·北京——板泉之野民宿与营地        ·奥地利Gro?weikersdorf社区中心        ·提高空间灵活性,激发市民自豪感        ·Mayora总部食堂,在花园中就餐        ·[最新]声学遇见美学大赛启动        ·[最新]工厂造零件现场拼房子        ·[最新]多地推进住宅"上保险"    
张存光设计师事务所-张存光

     

目前状态: 不在线| 写信 | 用QQ联系家园主人

  • 家园号:29640
  • 姓名:张存光 [北京 ]
  • 设计师类型:室内设计师
  • 查看详细资料
收起/展开本栏目按照案例性质分类

【网咖案例】——长春潘多拉游戏俱乐部 
标签: 1524  1593  685924  691426  104714  53302   2017/6/13 11:27:33
评论(0)   浏览()  收藏(0) 上一项 上一项      下一项 下一项
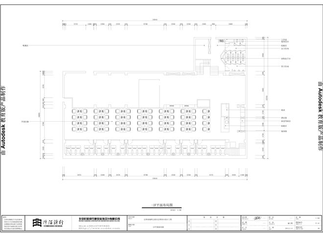
案例名称 【网咖案例】——长春潘多拉游戏俱乐部 案例投资总额 450  万元
作者 张存光 设计是否选用 竣工项目案例
设计类型 室内设计 案例类型 娱乐空间
案例所在地 吉林  案例面积 2200  平方米
所用材料品牌
设计说明 长春潘多拉游戏俱乐部,位于长春最繁华的商业街—桂林路1118号。是一家以动漫为主题集网吧、咖啡、桌游、密室于一体的综合性娱乐场所。设计师运用自然材料及相关动漫元素为整个场所注入了一种童话般的浪漫复古情怀 更多说明
潘多拉桂林路-布局13.jpg
【网咖案例】——长春潘多拉游戏俱乐部-张存光的设计师家园-1524,1593,685924,691426,104714,53302
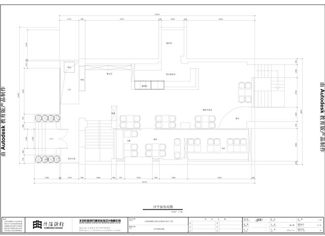
潘多拉桂林路-布局12.jpg
【网咖案例】——长春潘多拉游戏俱乐部-张存光的设计师家园-1524,1593,685924,691426,104714,53302
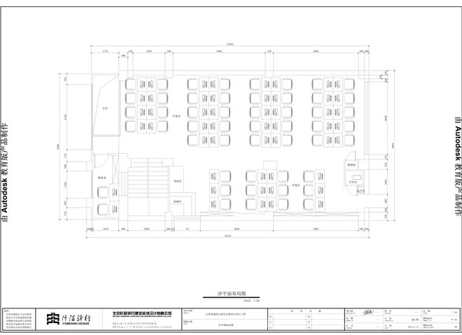
潘多拉桂林路-布局1.jpg
【网咖案例】——长春潘多拉游戏俱乐部-张存光的设计师家园-1524,1593,685924,691426,104714,53302
DSC_3052.JPG
【网咖案例】——长春潘多拉游戏俱乐部-张存光的设计师家园-1524,1593,685924,691426,104714,53302
DSC_3017.JPG
【网咖案例】——长春潘多拉游戏俱乐部-张存光的设计师家园-1524,1593,685924,691426,104714,53302
DSC_3010.JPG
【网咖案例】——长春潘多拉游戏俱乐部-张存光的设计师家园-1524,1593,685924,691426,104714,53302
IMG_3551.JPG
【网咖案例】——长春潘多拉游戏俱乐部-张存光的设计师家园-1524,1593,685924,691426,104714,53302
IMG_3543.JPG
【网咖案例】——长春潘多拉游戏俱乐部-张存光的设计师家园-1524,1593,685924,691426,104714,53302
DSC_3074.JPG
【网咖案例】——长春潘多拉游戏俱乐部-张存光的设计师家园-1524,1593,685924,691426,104714,53302
DSC_3066.JPG
【网咖案例】——长春潘多拉游戏俱乐部-张存光的设计师家园-1524,1593,685924,691426,104714,53302
DSC_3062.JPG
【网咖案例】——长春潘多拉游戏俱乐部-张存光的设计师家园-1524,1593,685924,691426,104714,53302
DSC_3061.JPG
【网咖案例】——长春潘多拉游戏俱乐部-张存光的设计师家园-1524,1593,685924,691426,104714,53302
DSC_3053.JPG
【网咖案例】——长春潘多拉游戏俱乐部-张存光的设计师家园-1524,1593,685924,691426,104714,53302
DSC_3039.JPG
【网咖案例】——长春潘多拉游戏俱乐部-张存光的设计师家园-1524,1593,685924,691426,104714,53302
DSC_3037.JPG
【网咖案例】——长春潘多拉游戏俱乐部-张存光的设计师家园-1524,1593,685924,691426,104714,53302
DSC_3021.JPG
【网咖案例】——长春潘多拉游戏俱乐部-张存光的设计师家园-1524,1593,685924,691426,104714,53302
DSC_3015.JPG
【网咖案例】——长春潘多拉游戏俱乐部-张存光的设计师家园-1524,1593,685924,691426,104714,53302
DSC_3012.JPG
【网咖案例】——长春潘多拉游戏俱乐部-张存光的设计师家园-1524,1593,685924,691426,104714,53302
DSC_3005.JPG
【网咖案例】——长春潘多拉游戏俱乐部-张存光的设计师家园-1524,1593,685924,691426,104714,53302
DSC_3001.JPG
【网咖案例】——长春潘多拉游戏俱乐部-张存光的设计师家园-1524,1593,685924,691426,104714,53302
DSC_3000.JPG
【网咖案例】——长春潘多拉游戏俱乐部-张存光的设计师家园-1524,1593,685924,691426,104714,53302
IMG_3572.JPG
【网咖案例】——长春潘多拉游戏俱乐部-张存光的设计师家园-1524,1593,685924,691426,104714,53302
212659bwwbk9vn5l56vvv2.jpg
【网咖案例】——长春潘多拉游戏俱乐部-张存光的设计师家园-1524,1593,685924,691426,104714,53302
212659pwz0ixj429wew34h.jpg
【网咖案例】——长春潘多拉游戏俱乐部-张存光的设计师家园-1524,1593,685924,691426,104714,53302
212700fywzbrwvqrfv2iot.jpg
【网咖案例】——长春潘多拉游戏俱乐部-张存光的设计师家园-1524,1593,685924,691426,104714,53302
211843eg0tultsszjnnc6z.jpg
【网咖案例】——长春潘多拉游戏俱乐部-张存光的设计师家园-1524,1593,685924,691426,104714,53302
211844nkaklerhka3zjljw.jpg
【网咖案例】——长春潘多拉游戏俱乐部-张存光的设计师家园-1524,1593,685924,691426,104714,53302
211845g9ibd9a9vcbxi764.jpg
【网咖案例】——长春潘多拉游戏俱乐部-张存光的设计师家园-1524,1593,685924,691426,104714,53302
211846q99rlcb2rucz99pu.jpg
【网咖案例】——长春潘多拉游戏俱乐部-张存光的设计师家园-1524,1593,685924,691426,104714,53302
212845j33wiptkvtdkhwo6.jpg
【网咖案例】——长春潘多拉游戏俱乐部-张存光的设计师家园-1524,1593,685924,691426,104714,53302

我的更多案例
设计师家园-乡下建了一座“农民房”之天旭农庄 设计师家园-鸟语林烧烤之约 设计师家园-长白山万达国际度假区之长白民俗火锅 设计师家园-【网咖案例】——长春潘多拉游戏俱乐部 设计师家园-长白山万达国际度假区向阳花酒店
匿名:
验证码: 点击换一个!    
案例评论
共1页     首页  上一页    1  下一页  末页