地区不限
北京
上海
天津
重庆
安徽
福建
甘肃
广东
广西
贵州
海南
河北
河南
黑龙江
湖北
湖南
吉林
江苏
江西
辽宁
内蒙古
宁夏
青海
山东
山西
陕西
四川
西藏
新疆
云南
浙江
台湾
香港
澳门
国外
类型不限
建筑设计师
室内设计师
景观设计师
其他个人会员
建筑设计公司
室内设计公司
景观设计公司
家装公司
公装公司
其他公司
全部设计师
全部设计公司
级别不限
会员
推荐会员
精英设计师
建案例
传图片
写文章
登陆
|
注册
|
帮助
用户名:
密码:
验证码:
自动登陆
(网吧勿用)
免费注册
找回密码
·
KUMO KUMO新总部办公空间
·
中国国际家具展览会30周年启幕
·
米兰国际家具展│构建面向未来的世界
·
北京——板泉之野民宿与营地
·
奥地利Gro?weikersdorf社区中心
·
提高空间灵活性,激发市民自豪感
·
Mayora总部食堂,在花园中就餐
·
[最新]声学遇见美学大赛启动
·
[最新]工厂造零件现场拼房子
·
[最新]多地推进住宅"上保险"
首页
档案
图片
案例
文章
留言
收藏
关注/粉丝
写信
余霭娉的设计师家园
http://1082959.china-designer.com/
委托设计
推荐好友
收藏网址
为了您更好的使用本网站,请您不要禁止javascript。
我的档案
目前状态:
|
|
家园号:1082959
姓名:余霭娉 [广东 ]
设计师类型:室内设计师
查看详细资料
在线呼叫
我的案例
展开所有案例
所有案例
(4)
按照案例性质分类
住宅公寓
(3)
别墅
(1)
相关案例
摩登华尔兹
2016/9/20
新绿城生活
2016/9/19
【怡·宁静】
2016/9/19
江与城蔚澜岸
2016/9/19
台北印象
2016/9/15
我的案例
天富豪庭
标签:
复式
2015/5/28 16:23:14
评论
(0)
浏览
()
收藏
(0)
上一项
下一项
案例名称
天富豪庭
案例投资总额
350 万元
作者
余霭娉
设计是否选用
设计方案
设计类型
室内设计
案例类型
住宅公寓
案例所在地
广东
案例面积
300 平方米
所用材料品牌
设计说明
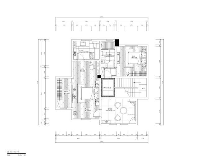
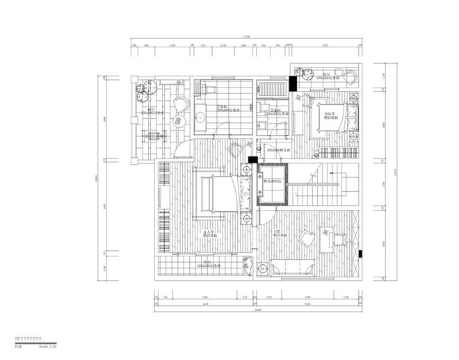
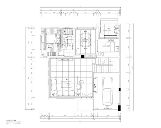
一、 设计范围
1、本装饰工程为浓厚的中国风风格装修
2、本装饰工程包括室内地面、墙面、吊顶及后期家具配饰
二、 平面布置
1、一层布置主要由起居室、餐厅、卧室、书房、厨
更多说明
一、 设计范围
1、本装饰工程为浓厚的中国风风格装修
2、本装饰工程包括室内地面、墙面、吊顶及后期家具配饰
二、 平面布置
1、一层布置主要由起居室、餐厅、卧室、书房、厨房、卫生间等部分构成;
2、二层布置主要由卧室、书房、储物间等部分构成
三、 防火要求
1、根据建设部颁发的《建筑设计防火规范》要求,在本装饰工程设计中主要采用阻燃性材料和难燃性材料;
2、所有隐蔽木结构部分表面(包括木龙骨,基层板双面)必须涂刷防火漆二遍
碧桂园施工图3层
碧桂园施工图二层
碧桂园施工图一层
-2
我的更多案例
匿名:
验证码:
案例评论
共1页 首页 上一页
1
下一页 末页
收藏目录
:
全部