地区不限
北京
上海
天津
重庆
安徽
福建
甘肃
广东
广西
贵州
海南
河北
河南
黑龙江
湖北
湖南
吉林
江苏
江西
辽宁
内蒙古
宁夏
青海
山东
山西
陕西
四川
西藏
新疆
云南
浙江
台湾
香港
澳门
国外
类型不限
建筑设计师
室内设计师
景观设计师
其他个人会员
建筑设计公司
室内设计公司
景观设计公司
家装公司
公装公司
其他公司
全部设计师
全部设计公司
级别不限
会员
推荐会员
精英设计师
建案例
传图片
写文章
登陆
|
注册
|
帮助
用户名:
密码:
验证码:
自动登陆
(网吧勿用)
免费注册
找回密码
·
KUMO KUMO新总部办公空间
·
中国国际家具展览会30周年启幕
·
米兰国际家具展│构建面向未来的世界
·
北京——板泉之野民宿与营地
·
奥地利Gro?weikersdorf社区中心
·
提高空间灵活性,激发市民自豪感
·
Mayora总部食堂,在花园中就餐
·
[最新]声学遇见美学大赛启动
·
[最新]工厂造零件现场拼房子
·
[最新]多地推进住宅"上保险"
首页
档案
图片
案例
文章
留言
收藏
关注/粉丝
写信
余平的设计师家园
http://819976.china-designer.com/
委托设计
推荐好友
收藏网址
为了您更好的使用本网站,请您不要禁止javascript。
我的档案
目前状态:
|
|
家园号:819976
姓名:余平 [陕西 ]
设计师类型:室内设计师
查看详细资料
在线呼叫
我的案例
展开所有案例
所有案例
(4)
按照案例性质分类
相关案例
上海国际旅游度假区万怡酒店
2016/9/23
广东禅泉度假酒店
2016/9/20
武汉外度假酒店
2016/9/20
清凉寨
2016/9/20
香格里嘉园
2016/9/19
我的案例
花迹酒店
标签:
主题酒店
2015/9/4 17:53:23
评论
(0)
浏览
()
收藏
(4)
上一项
下一项
案例名称
花迹酒店
案例投资总额
500 万元
作者
余平
设计是否选用
竣工项目案例
设计类型
室内设计
案例类型
酒店空间
案例所在地
江苏
案例面积
1300 平方米
所用材料品牌
德国都芳漆、杜拉维特卫浴、高仪卫浴、科勒卫浴、西顿照明、勿舍家具配套
设计说明
A、与同类竞争性物业相比,作品独有的设计策划、市场定位:
“花迹”坐落于南京历史街区,设计保留原生建筑体上的“踪迹”之美;对受损部位进行文物式修复;在院落、墙头、窗台处大量植花种草,构成“花”与“
更多说明
A、与同类竞争性物业相比,作品独有的设计策划、市场定位:
“花迹”坐落于南京历史街区,设计保留原生建筑体上的“踪迹”之美;对受损部位进行文物式修复;在院落、墙头、窗台处大量植花种草,构成“花”与“迹”的主题。
B、与同类竞争性物业相比,作品在环境风格上的设计创新点:
去掉装修式语言,不吊顶,无踢脚线,无门窗套,无消防栓门……,彻底避免物料开裂问题,让室内获得“长寿”。
将室内墙体上的锐角打磨成圆角,用建筑语言来表达,简约,实用,经济。
每个空间都有方便开启的窗户,阳光照进,空气流通。使用吊风扇,吐故纳新,提高空气质量。
C、与同类竞争性物业相比,作品在空间布局上的设计创新点:
呈现原建筑本真的空间尺度与优良的质感基因。
D、与同类竞争性物业相比,作品在设计选材上的设计创新点:
选旧砖、旧木、纯棉布织品等有生命属性的材料,将它们融入空间,并成为室内最终“品质”的担当者。
E、与同类竞争性物业相比,作品在投入运营后的出众经营效果:
得到了投资人与历史街区管委会的高度认可,经营起步良好。
酒店入口
大堂
院落一
走廊
消防栓局部
楼梯间水景
楼梯间
走廊
过厅
墙面细部
单人间
院落二
院落三
外立面
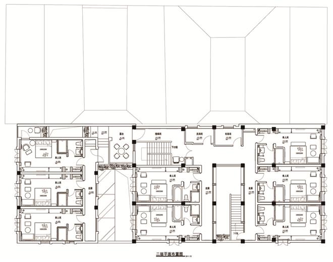
花迹酒店一层平面图
花迹酒店二层平面图
我的更多案例
匿名:
验证码:
案例评论
共1页 首页 上一页
1
下一页 末页
收藏目录
:
全部