地区不限
北京
上海
天津
重庆
安徽
福建
甘肃
广东
广西
贵州
海南
河北
河南
黑龙江
湖北
湖南
吉林
江苏
江西
辽宁
内蒙古
宁夏
青海
山东
山西
陕西
四川
西藏
新疆
云南
浙江
台湾
香港
澳门
国外
类型不限
建筑设计师
室内设计师
景观设计师
其他个人会员
建筑设计公司
室内设计公司
景观设计公司
家装公司
公装公司
其他公司
全部设计师
全部设计公司
级别不限
会员
推荐会员
精英设计师
建案例
传图片
写文章
登陆
|
注册
|
帮助
用户名:
密码:
验证码:
自动登陆
(网吧勿用)
免费注册
找回密码
·
KUMO KUMO新总部办公空间
·
中国国际家具展览会30周年启幕
·
米兰国际家具展│构建面向未来的世界
·
北京——板泉之野民宿与营地
·
奥地利Gro?weikersdorf社区中心
·
提高空间灵活性,激发市民自豪感
·
Mayora总部食堂,在花园中就餐
·
[最新]声学遇见美学大赛启动
·
[最新]工厂造零件现场拼房子
·
[最新]多地推进住宅"上保险"
首页
档案
图片
案例
文章
留言
收藏
关注/粉丝
写信
潘冉的设计师家园
http://819954.china-designer.com/
委托设计
推荐好友
收藏网址
为了您更好的使用本网站,请您不要禁止javascript。
我的档案
目前状态:
|
|
家园号:819954
姓名:潘冉 [江苏 ]
设计师类型:建筑设计师
查看详细资料
在线呼叫
我的案例
展开所有案例
所有案例
(13)
按照案例性质分类
相关案例
宁夏灵武市锦湖食府
2016/12/16
福州爱丽丝花园·蒸先生火锅餐厅
2016/9/26
老菜谱餐厅(低成本改装)
2016/9/19
同聚兴餐厅
2016/9/19
老蒲扇重庆火锅
2016/9/19
我的案例
问柳菜馆
标签:
百年老字号. 严肃的中国传统精神. 听雨看荷. 当地物料
2015/9/15 12:10:16
评论
(1)
浏览
()
收藏
(2)
上一项
下一项
案例名称
问柳菜馆
案例投资总额
867 万元
作者
潘冉
设计是否选用
竣工项目案例
设计类型
室内设计
案例类型
餐饮空间
案例所在地
江苏
案例面积
1439 平方米
所用材料品牌
Dark Light
设计说明
A、与同类竞争性物业相比,作品独有的设计策划、市场定位:
昔日秦淮,有三家老字号的茶馆, 俗称“三问”茶馆。其名分别取自“问渠哪得清如许,为有源头活水来。” —问渠; “使子路问津焉。”—问津;“
更多说明
A、与同类竞争性物业相比,作品独有的设计策划、市场定位:
昔日秦淮,有三家老字号的茶馆, 俗称“三问”茶馆。其名分别取自“问渠哪得清如许,为有源头活水来。” —问渠; “使子路问津焉。”—问津;“问柳寻花到新亭”—问柳。“三问”大约建于明末清初,是文人墨客聚会、商家巨贾谈生意的常往之地。本次设计对象,恰恰是以兼制活鲜菜肴闻名的“问柳”茶馆。
B、与同类竞争性物业相比,作品在环境风格上的设计创新点:
真正严肃的从中国传统精神出发,隐忍含蓄的使用中国式语言。结合运用建筑原有特色,打造内部安宁的环境氛围。“问柳”夸而有节,饰而不诬,恭敬的表达着空间营造者谦卑的诚意。众多当代名家留下的笔绘作品、手工艺品、艺术品与建筑装饰与建筑本体紧密结合,营造出平和高尚的空间气场。时间、光线、故事在此流转融会、一气呵成。
C、与同类竞争性物业相比,作品在空间布局上的设计创新点:
听雨看荷,第一重天井结合门厅设置,此处为故事的序章,洗净街市喧哗,将来客缓缓沁入建筑内部安宁的环境氛围。随着步步深入,第二重天井展现于眼前,它位于堂食厅的核心,是整栋建筑的心脏。一层空间的排布、二层包间的布置皆为围绕天井层层展开。天井的设置反映出中国风水流转的轮回思想,同时帮助建筑破除空间死角,为内部环境争取到充足的空气和光线。东西南北任何朝向空间都接受阳光沐浴,光线作用在古典建筑构造上,衍生出美妙的艺术效果。
D、与同类竞争性物业相比,作品在设计选材上的设计创新点:
选用了瓦片、砖细、竹节、风化榆木等当地材料,最朴素的材料在当代工艺的精细研磨下,使室内空间焕发出质朴祥和的气息
E、与同类竞争性物业相比,作品在投入运营后的出众经营效果:
空间里存着满满的人文情怀,运营后老百姓好评如潮,似乎回到了当年繁盛景象。
001.一层服务台
002.天井
003.二层公共区
004.二层过道1
005.二楼过道2
006.市隐园包间
007.问柳园包间
008.芥子园包间
009.茶室
010.白酒坊包间
011.洗手区
012.如厕区
013.门厅局部
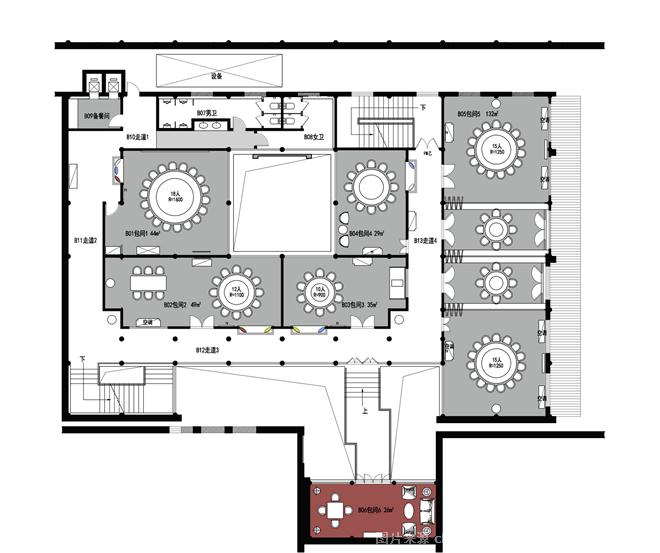
一层平面
二层平面
我的更多案例
匿名:
验证码:
案例评论
设计师家园总管
[设计师] 2015/9/15 13:48:48
恭喜您,此项目已入选china-designer优秀案例库,即日起7日内在网站首页热点推荐文字区随机出现,同时将长期在china-designer优秀案例库中展示,也将有机会入选网站系列图书。期待您更多的佳作。
家园主人的回复:
共1页 首页 上一页
1
下一页 末页
收藏目录
:
全部