地区不限
北京
上海
天津
重庆
安徽
福建
甘肃
广东
广西
贵州
海南
河北
河南
黑龙江
湖北
湖南
吉林
江苏
江西
辽宁
内蒙古
宁夏
青海
山东
山西
陕西
四川
西藏
新疆
云南
浙江
台湾
香港
澳门
国外
类型不限
建筑设计师
室内设计师
景观设计师
其他个人会员
建筑设计公司
室内设计公司
景观设计公司
家装公司
公装公司
其他公司
全部设计师
全部设计公司
级别不限
会员
推荐会员
精英设计师
建案例
传图片
写文章
登陆
|
注册
|
帮助
用户名:
密码:
验证码:
自动登陆
(网吧勿用)
免费注册
找回密码
·
KUMO KUMO新总部办公空间
·
中国国际家具展览会30周年启幕
·
米兰国际家具展│构建面向未来的世界
·
北京——板泉之野民宿与营地
·
奥地利Gro?weikersdorf社区中心
·
提高空间灵活性,激发市民自豪感
·
Mayora总部食堂,在花园中就餐
·
[最新]声学遇见美学大赛启动
·
[最新]工厂造零件现场拼房子
·
[最新]多地推进住宅"上保险"
首页
档案
图片
案例
文章
留言
收藏
关注/粉丝
写信
姚海滨的设计师家园
http://816176.china-designer.com/
委托设计
推荐好友
收藏网址
为了您更好的使用本网站,请您不要禁止javascript。
我的档案
目前状态:
|
|
家园号:816176
姓名:姚海滨 [广东 ]
设计师类型:室内设计师
查看详细资料
在线呼叫
我的案例
展开所有案例
所有案例
(7)
按照案例性质分类
相关案例
东湖城样板间
2016/9/20
周浦明天华城样板间
2016/9/16
祥云里销售中心
2016/9/14
天津蓟县山湖郡苑销售中心
2016/9/14
新藏式之远方的梦
2016/9/14
我的案例
重庆万科--锦程会所
标签:
温馨
2011/9/1 14:28:46
评论
(1)
浏览
()
收藏
(4)
上一项
下一项
案例名称
重庆万科--锦程会所
案例投资总额
500000 万元
作者
姚海滨
设计是否选用
竣工项目案例
设计类型
室内设计
案例类型
样板间/售楼处
案例所在地
重庆
案例面积
1000 平方米
所用材料品牌
马可波罗
设计说明
A、作品对城市需求与价值的独特挖掘角度:
设计创作理念均来自东南亚度假酒店。
B、作品在环境风格上的设计创新点:
入住后会体验到安逸。
C、作品在空间布局上的设计创新点:
更多说明
A、作品对城市需求与价值的独特挖掘角度:
设计创作理念均来自东南亚度假酒店。
B、作品在环境风格上的设计创新点:
入住后会体验到安逸。
C、作品在空间布局上的设计创新点:
它模糊了时间与空间的界限,倡导在社区内自由交流、沟通,是业主互动、共享的一种生活方式。
D、作品在设计选材上的设计创新点:
运用质感涂料.大理石与橡木地板相结合的现代东南亚风格。
E、作品在投入运营后的出众效果与评价:
这种设计很合理,以后重庆会推广,越来越多。
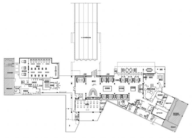
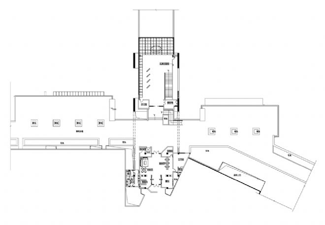
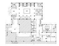
地下一层平面图
一层平面图
游泳池区
连廊
一层入口处
一层品牌主题区
地下一层卫生间门口
地下一层公共大堂
地下一层洽谈区
地下一层大模型区
地下一层接待区
我的更多案例
匿名:
验证码:
案例评论
李林
[业 主] 2012/5/21 12:23:34
计了重庆万科锦程的泛会所,现在我们项目也准备建设一个泛会所,想请您帮我们设计。 如果有意,可以进一步详谈,我的联系方式:电话:15803045379 李,QQ:175155871 期待您的回复,谢谢
家园主人的回复:
共1页 首页 上一页
1
下一页 末页
收藏目录
:
全部