地区不限
北京
上海
天津
重庆
安徽
福建
甘肃
广东
广西
贵州
海南
河北
河南
黑龙江
湖北
湖南
吉林
江苏
江西
辽宁
内蒙古
宁夏
青海
山东
山西
陕西
四川
西藏
新疆
云南
浙江
台湾
香港
澳门
国外
类型不限
建筑设计师
室内设计师
景观设计师
其他个人会员
建筑设计公司
室内设计公司
景观设计公司
家装公司
公装公司
其他公司
全部设计师
全部设计公司
级别不限
会员
推荐会员
精英设计师
建案例
传图片
写文章
登陆
|
注册
|
帮助
用户名:
密码:
验证码:
自动登陆
(网吧勿用)
免费注册
找回密码
·
KUMO KUMO新总部办公空间
·
中国国际家具展览会30周年启幕
·
米兰国际家具展│构建面向未来的世界
·
北京——板泉之野民宿与营地
·
奥地利Gro?weikersdorf社区中心
·
提高空间灵活性,激发市民自豪感
·
Mayora总部食堂,在花园中就餐
·
[最新]声学遇见美学大赛启动
·
[最新]工厂造零件现场拼房子
·
[最新]多地推进住宅"上保险"
首页
档案
图片
案例
文章
留言
收藏
关注/粉丝
写信
易永强的设计师家园
http://811684.china-designer.com/
委托设计
推荐好友
收藏网址
为了您更好的使用本网站,请您不要禁止javascript。
我的档案
目前状态:
|
|
家园号:811684
姓名:易永强 [广东 ]
设计师类型:室内设计师
查看详细资料
在线呼叫
我的案例
展开所有案例
所有案例
(11)
按照案例性质分类
住宅公寓
(2)
别墅
(1)
相关案例
东湖城样板间
2016/9/20
周浦明天华城样板间
2016/9/16
祥云里销售中心
2016/9/14
天津蓟县山湖郡苑销售中心
2016/9/14
新藏式之远方的梦
2016/9/14
我的案例
珑耀华府六座户型示范单位
标签:
住宅样板间
三居
绿色
闲静轻松
请选择
2016/8/31 16:13:14
评论
(0)
浏览
()
收藏
(0)
上一项
下一项
案例名称
珑耀华府六座户型示范单位
案例投资总额
30 万元
作者
易永强
设计是否选用
竣工项目案例
设计类型
室内设计
案例类型
样板间/售楼处
案例所在地
广东
案例面积
100 平方米
所用材料品牌
设计说明
设计说明:
以细腻、精致工法表现空间,在风格衍生的过程里,深究其文化背景进而设计出合乎居住者以及现代生活的质性,并非一味的追求形式上的彰显,而是一种对应人文条件富有内敛的设计策略。
客厅:<
更多说明
设计说明:
以细腻、精致工法表现空间,在风格衍生的过程里,深究其文化背景进而设计出合乎居住者以及现代生活的质性,并非一味的追求形式上的彰显,而是一种对应人文条件富有内敛的设计策略。
客厅:
客厅饰以灰玻区分,可开合推拉门实现空间的灵活组合,仿若置身一个魔幻空间,营造出业主内心所渴望的无拘无束氛围。客厅与餐厅的动线分布体现了现代设计理念的简约和人性化,客厅布置以时尚灰为主色调,平衡了大面积原木色的运用。餐厅餐台与多功能房书台作一体式处理,吊轮移门将两个空间一分为二,既可融会贯通亦可私密隐蔽。完美地呈现出空间的设计感,建立空间成员间的亲腻互动,打破常规,以新奇的设计手法将其融入整体。
卧室:
就像在主卧的创意构想中,设计师将床做了地台式处理,而为了增加整个卧室的储物空间,地柜不失为一个绝妙的创新方式,方便业主的同时也为整个空间增添了不少情趣;次卧与
空间整体以暖色调木色作主色调配,简约的装饰和生机盎然的绿植增加了室内生命气息,那些灵动的摆设也是恰到好处,设计师提倡绿色自然居住空间概念,将自然元素带入室内,打造一处别致清新的栖息之所。
客厅 (1)
客厅 (2)
客厅(3)
客厅(4)
卧室 (1)
卧室 (2)
07
08
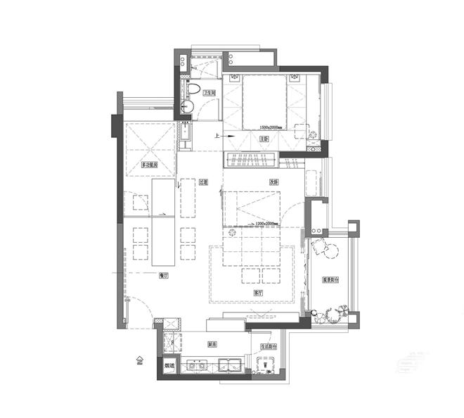
平面图
我的更多案例
匿名:
验证码:
案例评论
共1页 首页 上一页
1
下一页 末页
收藏目录
:
全部