易装修搜索
  建案例 传图片写文章 登陆  |  注册  |  帮助   
   ·KUMO KUMO新总部办公空间        ·中国国际家具展览会30周年启幕        ·米兰国际家具展│构建面向未来的世界        ·北京——板泉之野民宿与营地        ·奥地利Gro?weikersdorf社区中心        ·提高空间灵活性,激发市民自豪感        ·Mayora总部食堂,在花园中就餐        ·[最新]声学遇见美学大赛启动        ·[最新]工厂造零件现场拼房子        ·[最新]多地推进住宅"上保险"    
司徒曦的设计师家园-司徒曦

     

目前状态: 不在线| 写信 |

  • 家园号:811622
  • 姓名:司徒曦 [广东 ]
  • 设计师类型:室内设计师
  • 查看详细资料

保利若比邻中心项目番禺大都汇店 
标签: 购物中心/商业综合体  现代简约  简约大气   2016/8/31 11:04:22
评论(0)   浏览()  收藏(1) 上一项 上一项      下一项 下一项
案例名称 保利若比邻中心项目番禺大都汇店 案例投资总额 15  万元
作者 司徒曦 设计是否选用 竣工项目案例
设计类型 建筑设计 案例类型 购物空间
案例所在地 广东  案例面积 350  平方米
所用材料品牌
设计说明 位于公寓与办公商业的小区为背景的配套食品百货店,宽敞醒目的门面设计在感官体验上能吸引更多的顾客光临。唯爱与美食不可辜负,货架以食品不同的贮存方式区分摆放,排列整齐规划,功能区域利落简明,交错的大圆环与散 更多说明
01
保利若比邻中心项目番禺大都汇店-司徒曦的设计师家园-购物中心/商业综合体,现代简约,简约大气
02
保利若比邻中心项目番禺大都汇店-司徒曦的设计师家园-购物中心/商业综合体,现代简约,简约大气
03
保利若比邻中心项目番禺大都汇店-司徒曦的设计师家园-购物中心/商业综合体,现代简约,简约大气
04
保利若比邻中心项目番禺大都汇店-司徒曦的设计师家园-购物中心/商业综合体,现代简约,简约大气
05
保利若比邻中心项目番禺大都汇店-司徒曦的设计师家园-购物中心/商业综合体,现代简约,简约大气
06
保利若比邻中心项目番禺大都汇店-司徒曦的设计师家园-购物中心/商业综合体,现代简约,简约大气
07
保利若比邻中心项目番禺大都汇店-司徒曦的设计师家园-购物中心/商业综合体,现代简约,简约大气
08
保利若比邻中心项目番禺大都汇店-司徒曦的设计师家园-购物中心/商业综合体,现代简约,简约大气
09
保利若比邻中心项目番禺大都汇店-司徒曦的设计师家园-购物中心/商业综合体,现代简约,简约大气
10
保利若比邻中心项目番禺大都汇店-司徒曦的设计师家园-购物中心/商业综合体,现代简约,简约大气
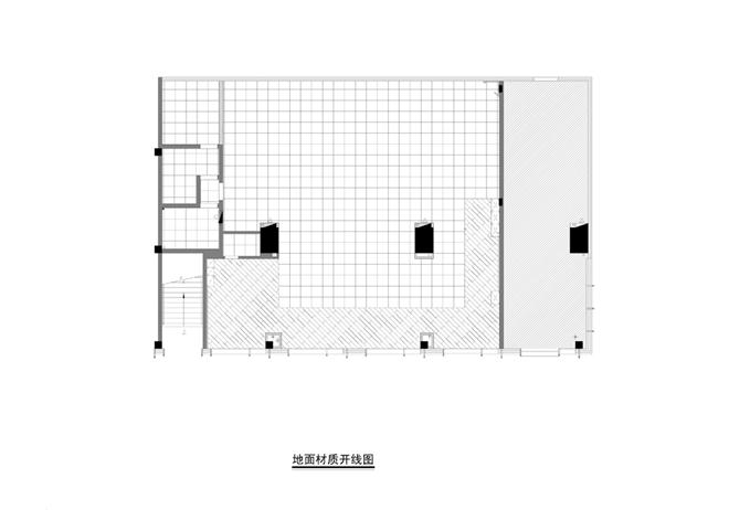
地面平面图
保利若比邻中心项目番禺大都汇店-司徒曦的设计师家园-购物中心/商业综合体,现代简约,简约大气
平面图1
保利若比邻中心项目番禺大都汇店-司徒曦的设计师家园-购物中心/商业综合体,现代简约,简约大气
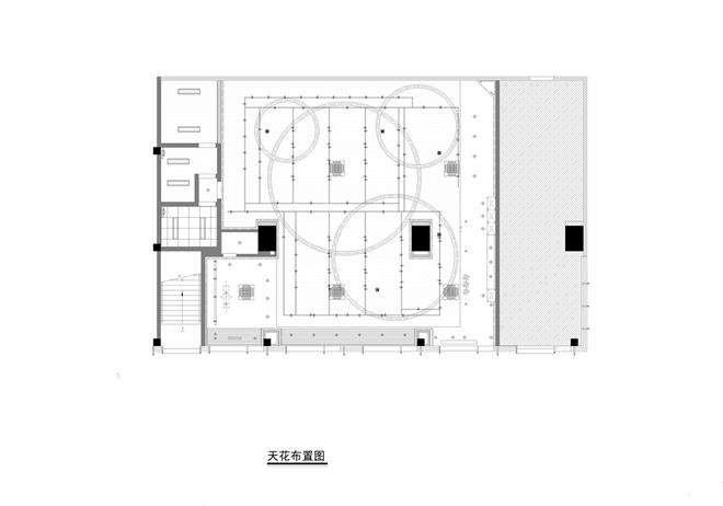
天花平面图
保利若比邻中心项目番禺大都汇店-司徒曦的设计师家园-购物中心/商业综合体,现代简约,简约大气

我的更多案例
设计师家园-岭南新世界六区A13楼2203户型 设计师家园-保利若比邻中心项目番禺大都汇店 设计师家园-中德红谷英伦世邦F区1#楼04户型 设计师家园-江西南昌正荣御湾D2样板房 设计师家园-城建可逸豪苑一期项目4栋301样板房
匿名:
验证码: 点击换一个!    
案例评论
共1页     首页  上一页    1  下一页  末页