地区不限
北京
上海
天津
重庆
安徽
福建
甘肃
广东
广西
贵州
海南
河北
河南
黑龙江
湖北
湖南
吉林
江苏
江西
辽宁
内蒙古
宁夏
青海
山东
山西
陕西
四川
西藏
新疆
云南
浙江
台湾
香港
澳门
国外
类型不限
建筑设计师
室内设计师
景观设计师
其他个人会员
建筑设计公司
室内设计公司
景观设计公司
家装公司
公装公司
其他公司
全部设计师
全部设计公司
级别不限
会员
推荐会员
精英设计师
建案例
传图片
写文章
登陆
|
注册
|
帮助
用户名:
密码:
验证码:
自动登陆
(网吧勿用)
免费注册
找回密码
·
KUMO KUMO新总部办公空间
·
中国国际家具展览会30周年启幕
·
米兰国际家具展│构建面向未来的世界
·
北京——板泉之野民宿与营地
·
奥地利Gro?weikersdorf社区中心
·
提高空间灵活性,激发市民自豪感
·
Mayora总部食堂,在花园中就餐
·
[最新]声学遇见美学大赛启动
·
[最新]工厂造零件现场拼房子
·
[最新]多地推进住宅"上保险"
首页
档案
图片
案例
文章
留言
收藏
关注/粉丝
写信
张震斌的设计师家园
http://803878.china-designer.com/
委托设计
推荐好友
收藏网址
为了您更好的使用本网站,请您不要禁止javascript。
我的档案
目前状态:
|
|
家园号:803878
姓名:张震斌 [山西 ]
设计师类型:室内设计师
查看详细资料
在线呼叫
我的案例
展开所有案例
所有案例
(6)
按照案例性质分类
相关案例
上海国际旅游度假区万怡酒店
2016/9/23
广东禅泉度假酒店
2016/9/20
武汉外度假酒店
2016/9/20
清凉寨
2016/9/20
香格里嘉园
2016/9/19
我的案例
朔城宾馆
标签:
新中式
2012/9/15 19:15:57
评论
(1)
浏览
()
收藏
(2)
上一项
下一项
案例名称
朔城宾馆
案例投资总额
5800 万元
作者
张震斌
设计是否选用
竣工项目案例
设计类型
室内设计
案例类型
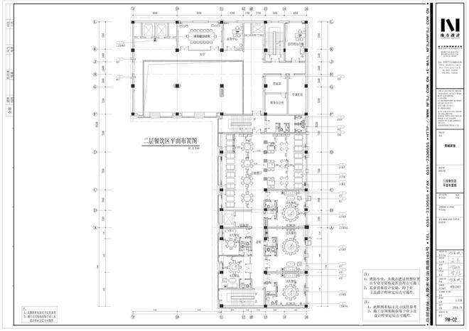
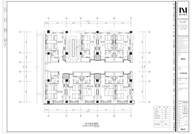
酒店空间
案例所在地
山西
案例面积
8900 平方米
所用材料品牌
龙牌石膏板、汉斯格雅卫浴、广安石材、双击壁纸、雷士灯具、昌隆、阿姆斯材料
设计说明
A、与同类竞争性物业相比,作品独有的设计策划、市场定位:
朔城宾馆位于山西省朔州市,为当地星级宾馆。本案在设计与定位上为高端客户使用。设计师在设计上以新中式风格为主
B、与同类竞争性物业相比
更多说明
A、与同类竞争性物业相比,作品独有的设计策划、市场定位:
朔城宾馆位于山西省朔州市,为当地星级宾馆。本案在设计与定位上为高端客户使用。设计师在设计上以新中式风格为主
B、与同类竞争性物业相比,作品在环境风格上的设计创新点:
结合了当代星级酒店的标准在,在功能空间与流线的划分上,注重了通、透、露、半隐藏的形式来烘托整个酒店的奢华感与私密感。
C、与同类竞争性物业相比,作品在空间布局上的设计创新点:
让来这里的宾客感到尊贵与惬意。主色调为暖棕香槟色,中国红的点缀以及纯净的白色空间,给宾客提供了舒适的就餐、入住环境。
D、与同类竞争性物业相比,作品在设计选材上的设计创新点:
整体空间格调高雅,庄重,带有东方特有的低调奢华感。餐饮区大面积白的的运用,欲给人营造清新,宁静,放松的就餐环境。
E、与同类竞争性物业相比,作品在投入运营后的出众经营效果:
在陈设上也运用了东方韵味的铜雕、青铜器、木雕、玉环、藤艺、水墨画等点缀空间,提高了酒店本身的品质感。灯光与照明上的运用也十分讲究,在整个酒店空间充满温馨的氛围……
1
2
3
4
5
6
7
8
9
10
11
12
13
14
15
16
17
18
19
20
21
22
23
24
25
26
27
28
平面图1
平面图2
我的更多案例
匿名:
验证码:
案例评论
设计师家园总管
[设计师] 2012/9/16 23:21:22
恭喜您,此项目已入选china-designer优秀案例库,即日起7日内在网站首页热点推荐文字区随机出现,同时将长期在china-designer优秀案例库中展示,也将有机会入选网站系列图书。期待您更多的佳作。
家园主人的回复:
共1页 首页 上一页
1
下一页 末页
收藏目录
:
全部