地区不限
北京
上海
天津
重庆
安徽
福建
甘肃
广东
广西
贵州
海南
河北
河南
黑龙江
湖北
湖南
吉林
江苏
江西
辽宁
内蒙古
宁夏
青海
山东
山西
陕西
四川
西藏
新疆
云南
浙江
台湾
香港
澳门
国外
类型不限
建筑设计师
室内设计师
景观设计师
其他个人会员
建筑设计公司
室内设计公司
景观设计公司
家装公司
公装公司
其他公司
全部设计师
全部设计公司
级别不限
会员
推荐会员
精英设计师
建案例
传图片
写文章
登陆
|
注册
|
帮助
用户名:
密码:
验证码:
自动登陆
(网吧勿用)
免费注册
找回密码
·
KUMO KUMO新总部办公空间
·
中国国际家具展览会30周年启幕
·
米兰国际家具展│构建面向未来的世界
·
北京——板泉之野民宿与营地
·
奥地利Gro?weikersdorf社区中心
·
提高空间灵活性,激发市民自豪感
·
Mayora总部食堂,在花园中就餐
·
[最新]声学遇见美学大赛启动
·
[最新]工厂造零件现场拼房子
·
[最新]多地推进住宅"上保险"
首页
档案
图片
案例
文章
留言
收藏
关注/粉丝
写信
buildingBOX™ 建方博思设计事务所
http://buildingBOX.china-designer.com/
委托设计
推荐好友
收藏网址
为了您更好的使用本网站,请您不要禁止javascript。
我的档案
目前状态:
|
|
家园号:489725
姓名:李雷夫 [广东 ]
设计师类型:室内设计师
查看详细资料
在线呼叫
我的案例
展开所有案例
所有案例
(9)
按照案例性质分类
相关案例
DC国际建筑设计事务所办公空间
2017/3/31
J&A办公样板间作品 绿城济南中心B户型
2016/11/2
钜亨网
2016/9/23
新办公主义
2016/9/21
一乘建筑事务所自用办公室
2016/9/20
我的案例
破土.新生--JZ NEW OFFICE
标签:
办公室
2013/9/11 15:24:02
评论
(0)
浏览
()
收藏
(4)
上一项
下一项
案例名称
破土.新生--JZ NEW OFFICE
案例投资总额
20 万元
作者
李雷夫
设计是否选用
竣工项目案例
设计类型
室内设计
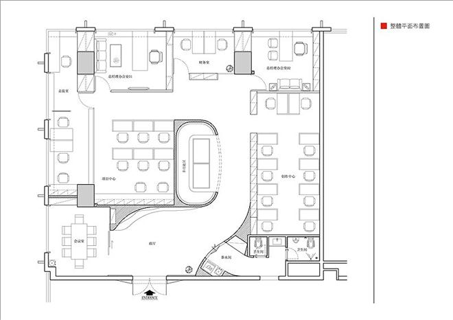
案例类型
办公空间
案例所在地
广东
案例面积
200 平方米
所用材料品牌
雷士灯具、黑钢、木夹板条、水泥色地砖、碎剪马赛克
设计说明
A、与同类竞争性物业相比,作品独有的设计策划、市场定位:
“竣智推广机构”是一家从事公关、媒体、广告等业务的多元化商业机构,本案即为“竣智”新迁办公室。从旧城区拥挤、陈旧的办公地点,到新区明亮、不
更多说明
A、与同类竞争性物业相比,作品独有的设计策划、市场定位:
“竣智推广机构”是一家从事公关、媒体、广告等业务的多元化商业机构,本案即为“竣智”新迁办公室。从旧城区拥挤、陈旧的办公地点,到新区明亮、不再压抑、完全属于自己的全新办公室,从一个侧面反映出企业几年以来的可喜发展。 这种“旧”与“新”的强烈对比,让设计师在接手项目的时候不由得感慨良多,从企业由小到大、从弱到强的发展经历,联想到了树木的生长:从种子落地、发芽出土、生根至茁壮成材的过程,由此萌生了“破土. 新生”这个概念,借此表达“除旧、立新、再成长”的寓意。
B、与同类竞争性物业相比,作品在环境风格上的设计创新点:
以人文关怀和包容的态度为出发点,在空间中心位置划分为以交流为主要考量的多功能区,其余各功能区环列周围,彼此相对独立之余又互有关联。 “树洞”形式的多功能区颜色鲜艳,灯光柔和,营造出舒适放松的氛围。
C、与同类竞争性物业相比,作品在空间布局上的设计创新点:
在紧凑的空间里,大胆舍弃了惯常的接待前台而采用开放前厅的形式,不拘一格,传达了企业兼容并蓄的包容态度。 前厅形象墙与多功能区无缝连接,形成的流畅表面围合后,抽象的表达了树干的概念。因半围合处理而被抽象为“树洞”的多功能区,兼具了实用与需求的多变性,大面积绿色的运用给整体气氛带来鲜明的活力,体现了企业的亲和力和人性化,也表达了企业多元、温和的包容性。
D、与同类竞争性物业相比,作品在设计选材上的设计创新点:
用“水泥色地砖、碎剪马赛克、木夹板条拼接间墙、抽象绿叶吊饰”等普通平常的材料,来分别代表“泥土、种子、树干、枝叶”,抽象的表现从小小的一颗种子,落入泥土中,孕育、发芽、成长,枝繁叶茂,生生不息的过程,表达企业不断进取和蓬勃发展的生命活力,亦希望企业像枝叶繁茂的大树一样,在多方面能有更好的发展与收获。
E、与同类竞争性物业相比,作品在投入运营后的出众经营效果:
半围合的“树洞”是工作之余最让人流连的地方。可以窝在沙发里,喝杯咖啡,舒缓工作中紧张的压力;也可以在一整面墙的大书架上选本书,静心阅读,吸取再进步的力量。
01-前厅形象墙,由夹板条人工拼接而成,配合灯光的运用,形成视觉焦点
02-水泥色地砖地面、碎剪马赛克、整面木色墙身,天花上绿色抽象叶子造型吊饰,分别呼应了泥土、种子、树干、枝叶的概念元素
03-形象墙望茶水间方向
04-茶水间门口望入口方向,会议室必要时可以完全开敞
05-形象墙与多功能区无缝连接,形成的流畅表面围合后,抽象的表达了树干的概念
06-大书柜作为创作中心与公共过道的间隔,局部的镂空处理兼顾了私密与通风的要求
07-多功能区做半围合处理,象征树洞,间墙上的抽象叶子镂空增强采光与空气的流通
08-大书柜正对多功能区,查阅资料与交流都相当方便.jpg08--大书柜正对多功能区,查阅资料与交流都相当方便
09-多功能区墙身绿色充满活力,配合柔和的灯光,营造轻松包容的氛围
10-公共过道
11-工作空间光照充足
12-夹板条拼接细节
13-碎剪马赛克镶嵌于水泥色地砖中,象征种子在泥土中发芽
概念01
概念02
平面
地面
天花
我的更多案例
匿名:
验证码:
案例评论
共1页 首页 上一页
1
下一页 末页
收藏目录
:
全部