易装修搜索
  建案例 传图片写文章 登陆  |  注册  |  帮助   
   ·KUMO KUMO新总部办公空间        ·中国国际家具展览会30周年启幕        ·米兰国际家具展│构建面向未来的世界        ·北京——板泉之野民宿与营地        ·奥地利Gro?weikersdorf社区中心        ·提高空间灵活性,激发市民自豪感        ·Mayora总部食堂,在花园中就餐        ·[最新]声学遇见美学大赛启动        ·[最新]工厂造零件现场拼房子        ·[最新]多地推进住宅"上保险"    
琚宾-琚宾

     

目前状态: 不在线| 写信 |

  • 家园号:481336
  • 姓名:琚宾 [广东 ]
  • 设计师类型:室内设计师
  • 查看详细资料
收起/展开本栏目按照案例性质分类

海南三亚香水湾1号 
评论(3)   浏览()  收藏(11) 上一项 上一项      下一项 下一项
案例名称 海南三亚香水湾1号 案例投资总额 4500000000  万元
作者 琚宾 设计是否选用 竣工项目案例
设计类型 室内设计 案例类型 酒店空间
案例所在地 海南  案例面积 94000  平方米
所用材料品牌 汉斯格雅  唯宝  卡西奥  范思哲  霍尔茨  
设计说明 A、与同类竞争性物业相比,作品独有的设计策划、市场定位:
香水湾一号是我们对亲海式度假酒店的研究性项目。对于建筑的亲海性,以及对自然的尊重,对室内设计原材料的探索,科技性与智能化的融入,都是我们思 更多说明
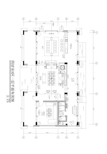
香水湾1号平面图
海南三亚香水湾1号-琚宾的设计师家园-200万以上,别墅                                                                                                ,棕色,新古典,奢华,中式,第八届中国国际室内设计双年展,金堂奖2010China-Designer中国室内设计年度评选
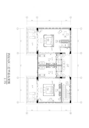
香水湾1号平面图2
海南三亚香水湾1号-琚宾的设计师家园-200万以上,别墅                                                                                                ,棕色,新古典,奢华,中式,第八届中国国际室内设计双年展,金堂奖2010China-Designer中国室内设计年度评选
3H7B9951_p1
海南三亚香水湾1号-琚宾的设计师家园-200万以上,别墅                                                                                                ,棕色,新古典,奢华,中式,第八届中国国际室内设计双年展,金堂奖2010China-Designer中国室内设计年度评选
3H7B9912
海南三亚香水湾1号-琚宾的设计师家园-200万以上,别墅                                                                                                ,棕色,新古典,奢华,中式,第八届中国国际室内设计双年展,金堂奖2010China-Designer中国室内设计年度评选
3H7B9848_p1
海南三亚香水湾1号-琚宾的设计师家园-200万以上,别墅                                                                                                ,棕色,新古典,奢华,中式,第八届中国国际室内设计双年展,金堂奖2010China-Designer中国室内设计年度评选
3H7B9761
海南三亚香水湾1号-琚宾的设计师家园-200万以上,别墅                                                                                                ,棕色,新古典,奢华,中式,第八届中国国际室内设计双年展,金堂奖2010China-Designer中国室内设计年度评选
3H7B9585
海南三亚香水湾1号-琚宾的设计师家园-200万以上,别墅                                                                                                ,棕色,新古典,奢华,中式,第八届中国国际室内设计双年展,金堂奖2010China-Designer中国室内设计年度评选
3H7B9556
海南三亚香水湾1号-琚宾的设计师家园-200万以上,别墅                                                                                                ,棕色,新古典,奢华,中式,第八届中国国际室内设计双年展,金堂奖2010China-Designer中国室内设计年度评选
3H7B9545_p1
海南三亚香水湾1号-琚宾的设计师家园-200万以上,别墅                                                                                                ,棕色,新古典,奢华,中式,第八届中国国际室内设计双年展,金堂奖2010China-Designer中国室内设计年度评选
3H7B9501
海南三亚香水湾1号-琚宾的设计师家园-200万以上,别墅                                                                                                ,棕色,新古典,奢华,中式,第八届中国国际室内设计双年展,金堂奖2010China-Designer中国室内设计年度评选

我的更多案例
设计师家园-重庆黎香湖教堂 设计师家园-重庆黎香湖别墅 设计师家园-燕西华府 设计师家园-千灯湖 设计师家园-工法展厅-荷塘月色
匿名:
验证码: 点击换一个!    
案例评论
王华杰  [设计师]   2013/11/28 14:47:06    
大师风范
Bobby_Lee  [精英设计师]   2011/10/26 21:34:20    
超班、点到即止…顶…欣赏
王振维  [设计师]   2010/12/3 12:07:17    
山水情,风静止,居者安。整体的木质结构展现了海南风光独有的美,好,敢问大师做多久了?河北小维
共1页     首页  上一页    1  下一页  末页