地区不限
北京
上海
天津
重庆
安徽
福建
甘肃
广东
广西
贵州
海南
河北
河南
黑龙江
湖北
湖南
吉林
江苏
江西
辽宁
内蒙古
宁夏
青海
山东
山西
陕西
四川
西藏
新疆
云南
浙江
台湾
香港
澳门
国外
类型不限
建筑设计师
室内设计师
景观设计师
其他个人会员
建筑设计公司
室内设计公司
景观设计公司
家装公司
公装公司
其他公司
全部设计师
全部设计公司
级别不限
会员
推荐会员
精英设计师
建案例
传图片
写文章
登陆
|
注册
|
帮助
用户名:
密码:
验证码:
自动登陆
(网吧勿用)
免费注册
找回密码
·
KUMO KUMO新总部办公空间
·
中国国际家具展览会30周年启幕
·
米兰国际家具展│构建面向未来的世界
·
北京——板泉之野民宿与营地
·
奥地利Gro?weikersdorf社区中心
·
提高空间灵活性,激发市民自豪感
·
Mayora总部食堂,在花园中就餐
·
[最新]声学遇见美学大赛启动
·
[最新]工厂造零件现场拼房子
·
[最新]多地推进住宅"上保险"
首页
档案
图片
案例
文章
留言
收藏
关注/粉丝
写信
谢云润
http://259765.china-designer.com/
委托设计
推荐好友
收藏网址
为了您更好的使用本网站,请您不要禁止javascript。
我的档案
目前状态:
|
|
家园号:259765
姓名:谢云润 [四川 ]
设计师类型:室内设计师
查看详细资料
在线呼叫
我的案例
展开所有案例
所有案例
(4)
按照案例性质分类
住宅公寓
(4)
相关案例
摩登华尔兹
2016/9/20
新绿城生活
2016/9/19
【怡·宁静】
2016/9/19
江与城蔚澜岸
2016/9/19
台北印象
2016/9/15
我的案例
灰兰与白
标签:
两居
欧式
蓝色
其他颜色
灰色
2016/9/9 12:01:56
评论
(0)
浏览
()
收藏
(0)
上一项
下一项
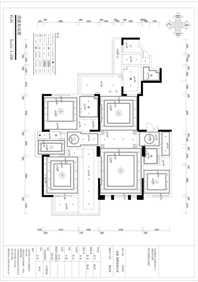
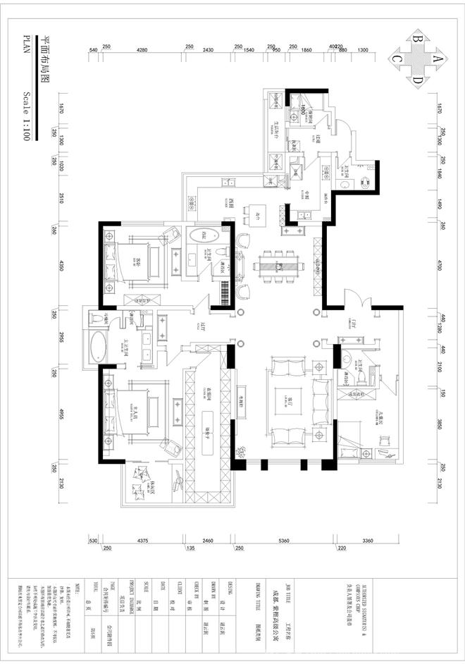
案例名称
灰兰与白
案例投资总额
200 万元
作者
谢云润
设计是否选用
竣工项目案例
设计类型
室内设计
案例类型
住宅公寓
案例所在地
四川
案例面积
298 平方米
所用材料品牌
整体家居
设计说明
A、作品对业主居住需求、生活价值的独特挖掘角度:
此案为大平层私人住宅,业主是一名在英国留学的海归女士,研读的珠和服装宝设计。喜欢的物件繁而不杂,素儿不简。在设计思路上,造型和色彩的平衡是我们在视
更多说明
A、作品对业主居住需求、生活价值的独特挖掘角度:
此案为大平层私人住宅,业主是一名在英国留学的海归女士,研读的珠和服装宝设计。喜欢的物件繁而不杂,素儿不简。在设计思路上,造型和色彩的平衡是我们在视觉艺术中考虑的重点。造型上简洁的欧式素线条运用在每一个空间中,或简、或繁,增加空间的节奏感和韵律感。色彩上以洁净的白玉色与恬静的灰兰一起碰撞,营造一份闲适而优雅的居住空间调性。
B、作品在环境风格上的设计创新点:
色彩亮点:色彩上以洁净的白玉色与恬静的灰兰一起碰撞,营造一份闲适而优雅的居住空间调性。 创意亮点:在客餐厅区域设计的罗马柱造型,把空间的轴线关系更加突出。
C、作品在空间布局上的设计创新点:
把原有的阳台改为了西式厨房,增添了烹饪空间和家人们的情感互动2、把入户的过道设计成一个独立式入户门厅。3主卧的衣帽间扩建让业主的衣物鞋帽有了更多的放置区域。
D、作品在设计选材上的设计创新点:
为了营造空间的闲适优雅,石材上以雅士白和爵士白为主要材质。在环保方面,墙面装饰都运用了进口奥松板和芬琳涂料做白色墙面,配合实木素线条增加造型感和空间节奏感。
E、作品在业主使用后的出众效果与评价:
无
进门
玄关
客厅
客厅
餐厅
卧室
浴室
卧室
厨房
卧室
我的更多案例
匿名:
验证码:
案例评论
共1页 首页 上一页
1
下一页 末页
收藏目录
:
全部