易装修搜索
  建案例 传图片写文章 登陆  |  注册  |  帮助   
   ·KUMO KUMO新总部办公空间        ·中国国际家具展览会30周年启幕        ·米兰国际家具展│构建面向未来的世界        ·北京——板泉之野民宿与营地        ·奥地利Gro?weikersdorf社区中心        ·提高空间灵活性,激发市民自豪感        ·Mayora总部食堂,在花园中就餐        ·[最新]声学遇见美学大赛启动        ·[最新]工厂造零件现场拼房子        ·[最新]多地推进住宅"上保险"    
郭瑞勇的设计师家园-郭瑞勇

     

目前状态: 不在线| 写信 |

  • 家园号:234141
  • 姓名:郭瑞勇 [北京 ]
  • 设计师类型:建筑设计师
  • 查看详细资料
收起/展开本栏目按照案例性质分类

北京建委办公楼 
评论(0)   浏览()  收藏(1) 上一项 上一项      下一项 下一项
案例名称 北京建委办公楼 案例投资总额 20000000  万元
作者 郭瑞勇 设计是否选用 竣工项目案例
设计类型 室内设计 案例类型 办公空间
案例所在地 北京  案例面积 20563.59  平方米
所用材料品牌 多乐士 诺贝尔 冠军 阿姆斯壮  
设计说明 A、与同类竞争性物业相比,作品独有的设计策划、市场定位:
项目伊始,拿了平面去现场,脑子里老有些杂乱想法来来去去,有几次,从一层一路走到顶层,若干个念头就给噼里啪啦的灭掉了。平面规矩方正的很典型, 更多说明
20
北京建委办公楼-郭瑞勇的设计师家园-服务大厅,服务区,大厅,办公楼,金堂奖,金堂奖2010China-Designer中国室内设计年度评选
19 13F过廊2
北京建委办公楼-郭瑞勇的设计师家园-服务大厅,服务区,大厅,办公楼,金堂奖,金堂奖2010China-Designer中国室内设计年度评选
18 13F过廊1
北京建委办公楼-郭瑞勇的设计师家园-服务大厅,服务区,大厅,办公楼,金堂奖,金堂奖2010China-Designer中国室内设计年度评选
17 12F报告厅2
北京建委办公楼-郭瑞勇的设计师家园-服务大厅,服务区,大厅,办公楼,金堂奖,金堂奖2010China-Designer中国室内设计年度评选
16 12F报告厅1
北京建委办公楼-郭瑞勇的设计师家园-服务大厅,服务区,大厅,办公楼,金堂奖,金堂奖2010China-Designer中国室内设计年度评选
15 12F接待室
北京建委办公楼-郭瑞勇的设计师家园-服务大厅,服务区,大厅,办公楼,金堂奖,金堂奖2010China-Designer中国室内设计年度评选
14 3F新闻发布厅
北京建委办公楼-郭瑞勇的设计师家园-服务大厅,服务区,大厅,办公楼,金堂奖,金堂奖2010China-Designer中国室内设计年度评选
13 3F小会议室1
北京建委办公楼-郭瑞勇的设计师家园-服务大厅,服务区,大厅,办公楼,金堂奖,金堂奖2010China-Designer中国室内设计年度评选
12 2F 公共电梯间
北京建委办公楼-郭瑞勇的设计师家园-服务大厅,服务区,大厅,办公楼,金堂奖,金堂奖2010China-Designer中国室内设计年度评选
11 1F营业厅2
北京建委办公楼-郭瑞勇的设计师家园-服务大厅,服务区,大厅,办公楼,金堂奖,金堂奖2010China-Designer中国室内设计年度评选
10 1F营业厅1
北京建委办公楼-郭瑞勇的设计师家园-服务大厅,服务区,大厅,办公楼,金堂奖,金堂奖2010China-Designer中国室内设计年度评选
09 1F门厅楼梯3
北京建委办公楼-郭瑞勇的设计师家园-服务大厅,服务区,大厅,办公楼,金堂奖,金堂奖2010China-Designer中国室内设计年度评选
08 1F门厅楼梯2
北京建委办公楼-郭瑞勇的设计师家园-服务大厅,服务区,大厅,办公楼,金堂奖,金堂奖2010China-Designer中国室内设计年度评选
07 1F门厅楼梯1
北京建委办公楼-郭瑞勇的设计师家园-服务大厅,服务区,大厅,办公楼,金堂奖,金堂奖2010China-Designer中国室内设计年度评选
06 1F门厅2
北京建委办公楼-郭瑞勇的设计师家园-服务大厅,服务区,大厅,办公楼,金堂奖,金堂奖2010China-Designer中国室内设计年度评选
05 1F门厅1
北京建委办公楼-郭瑞勇的设计师家园-服务大厅,服务区,大厅,办公楼,金堂奖,金堂奖2010China-Designer中国室内设计年度评选
04 1F大厅
北京建委办公楼-郭瑞勇的设计师家园-服务大厅,服务区,大厅,办公楼,金堂奖,金堂奖2010China-Designer中国室内设计年度评选
03 大厅
北京建委办公楼-郭瑞勇的设计师家园-服务大厅,服务区,大厅,办公楼,金堂奖,金堂奖2010China-Designer中国室内设计年度评选
02 外观2
北京建委办公楼-郭瑞勇的设计师家园-服务大厅,服务区,大厅,办公楼,金堂奖,金堂奖2010China-Designer中国室内设计年度评选
01 外观1
北京建委办公楼-郭瑞勇的设计师家园-服务大厅,服务区,大厅,办公楼,金堂奖,金堂奖2010China-Designer中国室内设计年度评选
F1F2~06-1-ELE8
北京建委办公楼-郭瑞勇的设计师家园-服务大厅,服务区,大厅,办公楼,金堂奖,金堂奖2010China-Designer中国室内设计年度评选
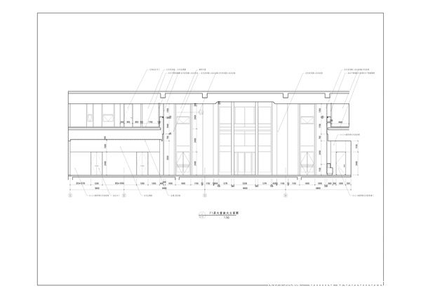
F1F2~06-1-ELE4
北京建委办公楼-郭瑞勇的设计师家园-服务大厅,服务区,大厅,办公楼,金堂奖,金堂奖2010China-Designer中国室内设计年度评选
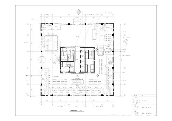
F1~06-1-FF
北京建委办公楼-郭瑞勇的设计师家园-服务大厅,服务区,大厅,办公楼,金堂奖,金堂奖2010China-Designer中国室内设计年度评选

我的更多案例
设计师家园-北京建委办公楼 设计师家园-重庆国际会展中心 设计师家园-延庆野鸭湖湿地自然保护区宣教中心 设计师家园-颐和园宾馆 设计师家园-贵阳喜来登酒店
匿名:
验证码: 点击换一个!    
案例评论
共1页     首页  上一页    1  下一页  末页