地区不限
北京
上海
天津
重庆
安徽
福建
甘肃
广东
广西
贵州
海南
河北
河南
黑龙江
湖北
湖南
吉林
江苏
江西
辽宁
内蒙古
宁夏
青海
山东
山西
陕西
四川
西藏
新疆
云南
浙江
台湾
香港
澳门
国外
类型不限
建筑设计师
室内设计师
景观设计师
其他个人会员
建筑设计公司
室内设计公司
景观设计公司
家装公司
公装公司
其他公司
全部设计师
全部设计公司
级别不限
会员
推荐会员
精英设计师
建案例
传图片
写文章
登陆
|
注册
|
帮助
用户名:
密码:
验证码:
自动登陆
(网吧勿用)
免费注册
找回密码
·
KUMO KUMO新总部办公空间
·
中国国际家具展览会30周年启幕
·
米兰国际家具展│构建面向未来的世界
·
北京——板泉之野民宿与营地
·
奥地利Gro?weikersdorf社区中心
·
提高空间灵活性,激发市民自豪感
·
Mayora总部食堂,在花园中就餐
·
[最新]声学遇见美学大赛启动
·
[最新]工厂造零件现场拼房子
·
[最新]多地推进住宅"上保险"
首页
档案
图片
案例
文章
留言
收藏
关注/粉丝
写信
上海艾获尔室内装饰设计有限公司
http://ihor.china-designer.com/
委托设计
推荐好友
收藏网址
为了您更好的使用本网站,请您不要禁止javascript。
我的档案
目前状态:
|
|
家园号:21913
姓名:胡俊峰 [上海 ]
设计师类型:室内设计师
查看详细资料
在线呼叫
我的案例
展开所有案例
所有案例
(25)
按照案例性质分类
相关案例
宁夏灵武市锦湖食府
2016/12/16
福州爱丽丝花园·蒸先生火锅餐厅
2016/9/26
老菜谱餐厅(低成本改装)
2016/9/19
同聚兴餐厅
2016/9/19
老蒲扇重庆火锅
2016/9/19
我的案例
浙江青田盛太名厨
标签:
闲静放松
后现代主义
青春活力
工业化
黑色
2011/9/12 20:57:15
评论
(2)
浏览
()
收藏
(4)
上一项
下一项
案例名称
浙江青田盛太名厨
案例投资总额
1500000 万元
作者
胡俊峰
设计是否选用
竣工项目案例
设计类型
室内设计
案例类型
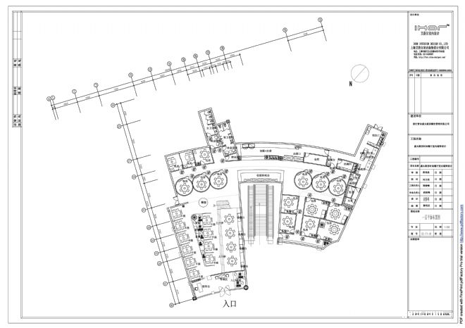
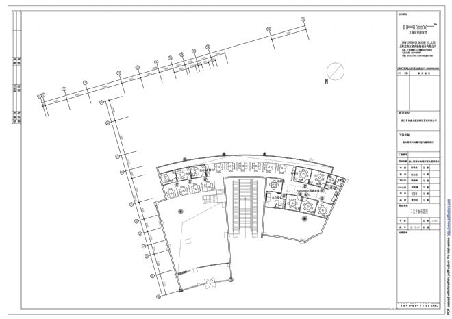
餐饮空间
案例所在地
浙江
案例面积
1200 平方米
所用材料品牌
个性瓷砖
设计说明
A、与同类竞争性物业相比,作品独有的设计策划、市场定位:
定位于高端火锅客户
B、与同类竞争性物业相比,作品在环境风格上的设计创新点:
区别于传统风格的火锅店印象
C、与同类竞争
更多说明
A、与同类竞争性物业相比,作品独有的设计策划、市场定位:
定位于高端火锅客户
B、与同类竞争性物业相比,作品在环境风格上的设计创新点:
区别于传统风格的火锅店印象
C、与同类竞争性物业相比,作品在空间布局上的设计创新点:
宽敞大气
D、与同类竞争性物业相比,作品在设计选材上的设计创新点:
抛除传统装饰材料,以素水泥和木质材料装饰整体
E、与同类竞争性物业相比,作品在投入运营后的出众经营效果:
大部分客户很新鲜环境的特色
平面图2f
平面图1f
照片-1060
照片-1026
照片-1025
照片-1018
照片-1017
照片-986
照片-981
照片-973
我的更多案例
匿名:
验证码:
案例评论
李姗
[设计师] 2011/12/20 14:17:37
您好,圣诞节快乐!!学习您的设计灵魂,感触颇深,希望您有时间瞄一眼我的参赛作品,希望得到您的支持
家园主人的回复:
设计师家园总管
[设计师] 2011/9/12 21:47:31
恭喜您,此项目已入选china-designer优秀案例库,即日起7日内在网站首页热点推荐文字区随机出现,同时将长期在china-designer优秀案例库中展示,也将有机会入选网站系列图书。期待您更多的佳作。
家园主人的回复:
共1页 首页 上一页
1
下一页 末页
收藏目录
:
全部