地区不限
北京
上海
天津
重庆
安徽
福建
甘肃
广东
广西
贵州
海南
河北
河南
黑龙江
湖北
湖南
吉林
江苏
江西
辽宁
内蒙古
宁夏
青海
山东
山西
陕西
四川
西藏
新疆
云南
浙江
台湾
香港
澳门
国外
类型不限
建筑设计师
室内设计师
景观设计师
其他个人会员
建筑设计公司
室内设计公司
景观设计公司
家装公司
公装公司
其他公司
全部设计师
全部设计公司
级别不限
会员
推荐会员
精英设计师
建案例
传图片
写文章
登陆
|
注册
|
帮助
用户名:
密码:
验证码:
自动登陆
(网吧勿用)
免费注册
找回密码
·
KUMO KUMO新总部办公空间
·
中国国际家具展览会30周年启幕
·
米兰国际家具展│构建面向未来的世界
·
北京——板泉之野民宿与营地
·
奥地利Gro?weikersdorf社区中心
·
提高空间灵活性,激发市民自豪感
·
Mayora总部食堂,在花园中就餐
·
[最新]声学遇见美学大赛启动
·
[最新]工厂造零件现场拼房子
·
[最新]多地推进住宅"上保险"
首页
档案
图片
案例
文章
留言
收藏
关注/粉丝
写信
设计师家园
http://158233.china-designer.com/
委托设计
推荐好友
收藏网址
为了您更好的使用本网站,请您不要禁止javascript。
我的档案
目前状态:
|
|
家园号:158233
姓名:黎夏萌 [广东 ]
设计师类型:室内设计师
查看详细资料
在线呼叫
我的案例
展开所有案例
所有案例
(3)
按照案例性质分类
相关案例
爱莲说
2016/9/15
沈阳绿波廊永乐汇商务会馆
2016/9/15
沈阳绿波廊永乐汇商务会馆
2016/9/15
深圳碧海湾高尔夫翡翠铭汇练习场
2016/9/14
迈康国际健身会所
2016/9/14
我的案例
郑州紫荆尚都会所
标签:
水疗、健身会所
2011/9/15 15:34:30
评论
(4)
浏览
()
收藏
(2)
上一项
下一项
案例名称
郑州紫荆尚都会所
案例投资总额
20000000 万元
作者
黎夏萌
设计是否选用
竣工项目案例
设计类型
室内设计
案例类型
休闲健身空间
案例所在地
河南
案例面积
6000 平方米
所用材料品牌
设计说明
A、与同类竞争性物业相比,作品独有的设计策划、市场定位:
郑州紫荆尚都会所水汇,处于高尚住宅小区内的综合性健身会所,主要服务人群是高尚住宅小区的业主与部分外来商务人员,与同类竞争性物业相比,郑州紫
更多说明
A、与同类竞争性物业相比,作品独有的设计策划、市场定位:
郑州紫荆尚都会所水汇,处于高尚住宅小区内的综合性健身会所,主要服务人群是高尚住宅小区的业主与部分外来商务人员,与同类竞争性物业相比,郑州紫荆尚都会所水汇融合了古老传统和现代高科技的水疗方法,已不再是贵族们的专宠,而逐渐成为现代都市人回归自然,消除身心疲惫,集休闲、健身、解压于一体的时尚健康概念。
B、与同类竞争性物业相比,作品在环境风格上的设计创新点:
与同类竞争性物业相比,郑州紫荆尚都会所的水汇运用了热带、亚热带独有的热带雨林风格设计,到处都是热带植物的雕塑、装饰与园林,进入郑州紫荆尚都会所的水汇有如亲临热带雨林的感觉,是休闲、健身、聚会的好去处。
C、与同类竞争性物业相比,作品在空间布局上的设计创新点:
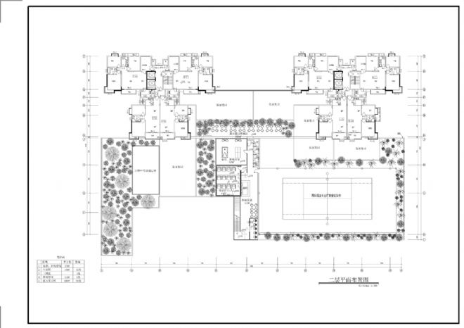
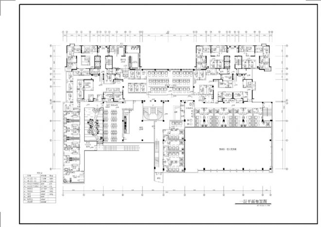
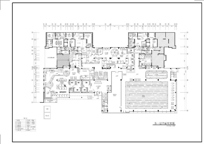
与同类竞争性物业相比,郑州紫荆尚都会所的水汇在平面设计规划时,着重于景观的运用,在空间设计上按水疗的项目、设施与功能更加合理布置,将有限的空间在视觉与感觉上都得到扩大,进入一楼大堂,透过玻璃就看见碧蓝的游泳池;健身室、VIP房也是围绕着泳池设计,视野广阔,令人心旷神怡;二楼的餐厅、SPA房至于热带雨林的园林之中,十分惬意;三楼还配置了网球场和供运动的人们休息的咖啡吧,更加突显休闲舒适。
D、与同类竞争性物业相比,作品在设计选材上的设计创新点:
与同类竞争性物业相比,郑州紫荆尚都会所的水汇选材上的设计创新点是根据水汇的特性,采用了黄洞石、黒砚石、砂岩、泰国柚木板与铁艺雕塑等。
E、与同类竞争性物业相比,作品在投入运营后的出众经营效果:
与同类竞争性物业相比,郑州紫荆尚都会所的水汇在近期投入运营后反应良好,受到业主们的称赞,口碑甚佳,预期将有出众的经营效果。
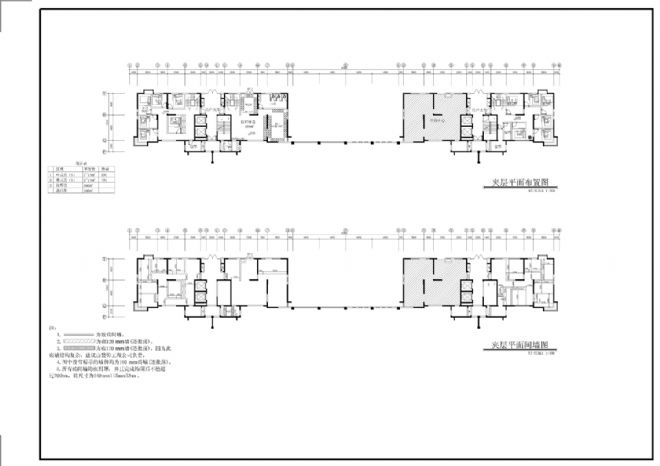
郑州紫荆尚都会所 水疗 夹层平面图
郑州紫荆尚都会所 水疗 负一层平面图
郑州紫荆尚都会所 水疗 二层平面图
郑州紫荆尚都会所 水疗 一层平面图
郑州紫荆尚都会所照片 (22)
郑州紫荆尚都会所照片 (21)
郑州紫荆尚都会所照片 (20)
郑州紫荆尚都会所照片 (19)
郑州紫荆尚都会所照片 (18)
郑州紫荆尚都会所照片 (17)
郑州紫荆尚都会所照片 (16)
郑州紫荆尚都会所照片 (14)
郑州紫荆尚都会所照片 (12)
郑州紫荆尚都会所照片 (11)
郑州紫荆尚都会所照片 (10)
郑州紫荆尚都会所照片 (9)
郑州紫荆尚都会所照片 (8)
郑州紫荆尚都会所照片 (7)
郑州紫荆尚都会所照片 (6)
郑州紫荆尚都会所照片 (5)
郑州紫荆尚都会所照片 (4)
郑州紫荆尚都会所照片 (3)
郑州紫荆尚都会所照片 (1)
我的更多案例
匿名:
验证码:
案例评论
匿名
[游客] 2011/10/17 16:12:26
在泳池边跑步的感觉很好
家园主人的回复:
匿名
[游客] 2011/10/17 16:06:47
餐厅的灯有特色,有雨打芭蕉的意境
家园主人的回复:
匿名
[游客] 2011/10/11 13:58:11
好
家园主人的回复:
匿名
[游客] 2011/10/11 13:56:02
真有热带雨林的感觉
家园主人的回复:
共1页 首页 上一页
1
下一页 末页
收藏目录
:
全部