易装修搜索
  建案例 传图片写文章 登陆  |  注册  |  帮助   
   ·KUMO KUMO新总部办公空间        ·中国国际家具展览会30周年启幕        ·米兰国际家具展│构建面向未来的世界        ·北京——板泉之野民宿与营地        ·奥地利Gro?weikersdorf社区中心        ·提高空间灵活性,激发市民自豪感        ·Mayora总部食堂,在花园中就餐        ·[最新]声学遇见美学大赛启动        ·[最新]工厂造零件现场拼房子        ·[最新]多地推进住宅"上保险"    
郑州美巢装饰设计师家园-郑州美巢装饰

     

目前状态: 不在线| 写信 | 用QQ联系家园主人

  • 家园号:1129486
  • 姓名:郑州美巢装饰 [河南 ]
  • 设计师类型:室内设计师
  • 查看详细资料

郑州海马公园四室大平层装修效果图-160平简约设计屈才么

类别:灯光与照明   评论(0)   浏览 (230)   2018/1/27  [原创]

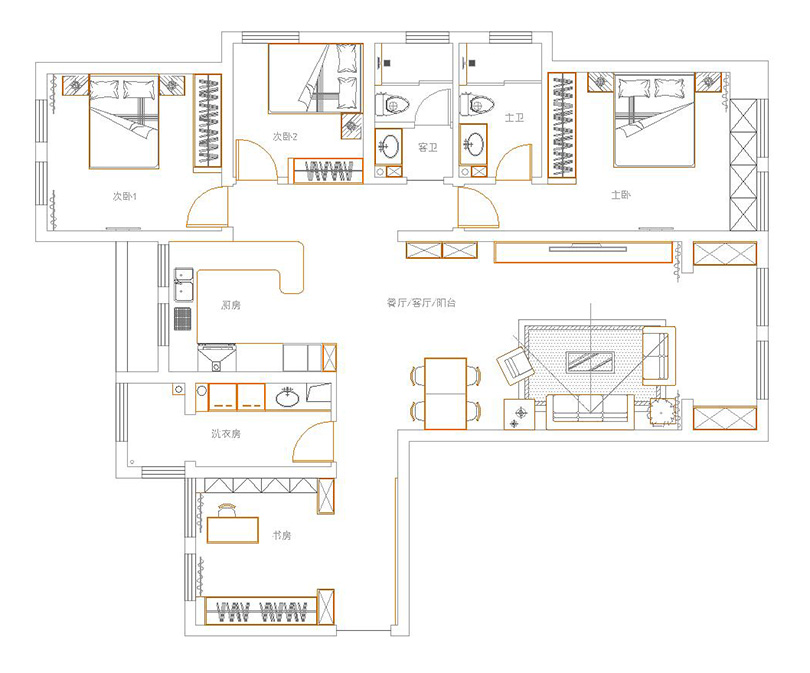
    郑州海马公园四室大平层装修效果图-160平简约设计屈才么,案例出自美巢装饰,160平四室两厅算得上很少的大平层户型,在很多人的眼中非富即贵不为过,而在装修设计上,怎么着也要是符合自己要求的情调吧,这样才能很好的给房子做个二次升值,也能让家人得到一个享受啊,这个又小孩子自己住的业主,就是希望充分的给孩子留出玩耍和成长的空间,也是一种投资吧。




海马公园装修效果图,入户门与开放式书房



郑州海马公园160平四室两厅装修案例,现代电视背景墙



海马公园4室2厅装修现代时尚案例效果图,客餐厅布局



海马公园现代时尚装修样板间,大平层书房书架



海马公园160平四室两厅户型装修设计平面布局——郑州美巢装饰




美巢装饰装修专线: 135-9267-4700 (微信,免*费量房/做预算) 0371-5373 1863

美巢装饰组团立减2000通道 : http://www.chinamaco.cn/group-list-103/






您还未登陆请您先 登陆 后发表
验证码: 点击换一个!    
文章评论

此专栏暂时还没有人发表评论!

共页     首页  上一页   下一页  末页