易装修搜索
  建案例 传图片写文章 登陆  |  注册  |  帮助   
   ·KUMO KUMO新总部办公空间        ·中国国际家具展览会30周年启幕        ·米兰国际家具展│构建面向未来的世界        ·北京——板泉之野民宿与营地        ·奥地利Gro?weikersdorf社区中心        ·提高空间灵活性,激发市民自豪感        ·Mayora总部食堂,在花园中就餐        ·[最新]声学遇见美学大赛启动        ·[最新]工厂造零件现场拼房子        ·[最新]多地推进住宅"上保险"    
郑州美巢装饰设计师家园-郑州美巢装饰

     

目前状态: 不在线| 写信 | 用QQ联系家园主人

  • 家园号:1129486
  • 姓名:郑州美巢装饰 [河南 ]
  • 设计师类型:室内设计师
  • 查看详细资料

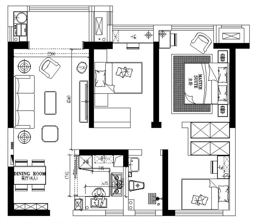
郑地美景东望装修90平小三房-温馨时尚尤其喜欢餐厅摆件

类别:其他   评论(0)   浏览 (522)   2018/1/18  [原创]

    郑地美景东望装修90平小三房-温馨时尚尤其喜欢餐厅摆件,案例出自美巢装饰,90平很常见的三房户型设计,对于小家庭来说可以很轻松的享受美好的生活,90后的业主对于自己的喜欢是很多元的,虽然基础是欧式风,但是并没有局限于一个特点,选家具选择上也有北欧的个性所在,再加上地中海元素的摆件和碎花的背景墙,就是清新范了。



郑地美景东望装修效果图,入户鞋柜设计



美景东望90平小三房装修设计欧式风,客厅电视背景墙



郑地美景东望3室2厅装修田园风欧式案例,沙发布局



美景东望欧式混搭装修样板间,餐厅效果图



郑地美景东望90平三室两厅户型装修设计平面布局——郑州美巢装饰




美巢装饰装修专线: 135-9267-4700 (微信,免*费量房/做预算) 0371-5373 1863

美巢装饰3人组团立减2000元: http://www.chinamaco.cn/woyaozhuangxiu/



您还未登陆请您先 登陆 后发表
验证码: 点击换一个!    
文章评论

此专栏暂时还没有人发表评论!

共页     首页  上一页   下一页  末页