地区不限
北京
上海
天津
重庆
安徽
福建
甘肃
广东
广西
贵州
海南
河北
河南
黑龙江
湖北
湖南
吉林
江苏
江西
辽宁
内蒙古
宁夏
青海
山东
山西
陕西
四川
西藏
新疆
云南
浙江
台湾
香港
澳门
国外
类型不限
建筑设计师
室内设计师
景观设计师
其他个人会员
建筑设计公司
室内设计公司
景观设计公司
家装公司
公装公司
其他公司
全部设计师
全部设计公司
级别不限
会员
推荐会员
精英设计师
建案例
传图片
写文章
登陆
|
注册
|
帮助
用户名:
密码:
验证码:
自动登陆
(网吧勿用)
免费注册
找回密码
·
KUMO KUMO新总部办公空间
·
中国国际家具展览会30周年启幕
·
米兰国际家具展│构建面向未来的世界
·
北京——板泉之野民宿与营地
·
奥地利Gro?weikersdorf社区中心
·
提高空间灵活性,激发市民自豪感
·
Mayora总部食堂,在花园中就餐
·
[最新]声学遇见美学大赛启动
·
[最新]工厂造零件现场拼房子
·
[最新]多地推进住宅"上保险"
首页
档案
图片
案例
文章
留言
收藏
关注/粉丝
写信
朴威的设计师家园
http://1115713.china-designer.com/
委托设计
推荐好友
收藏网址
为了您更好的使用本网站,请您不要禁止javascript。
我的档案
目前状态:
|
|
家园号:1115713
姓名:朴威 [辽宁 ]
设计师类型:室内设计师
查看详细资料
在线呼叫
我的案例
展开所有案例
所有案例
(1)
按照案例性质分类
相关案例
宁夏灵武市锦湖食府
2016/12/16
福州爱丽丝花园·蒸先生火锅餐厅
2016/9/26
老菜谱餐厅(低成本改装)
2016/9/19
同聚兴餐厅
2016/9/19
老蒲扇重庆火锅
2016/9/19
我的案例
艾美时品质餐厅
标签:
创意菜
现代简约
闲静轻松
其他颜色
2016/9/13 22:42:49
评论
(0)
浏览
()
收藏
(1)
上一项 下一项
案例名称
艾美时品质餐厅
案例投资总额
60 万元
作者
朴威
设计是否选用
竣工项目案例
设计类型
室内设计
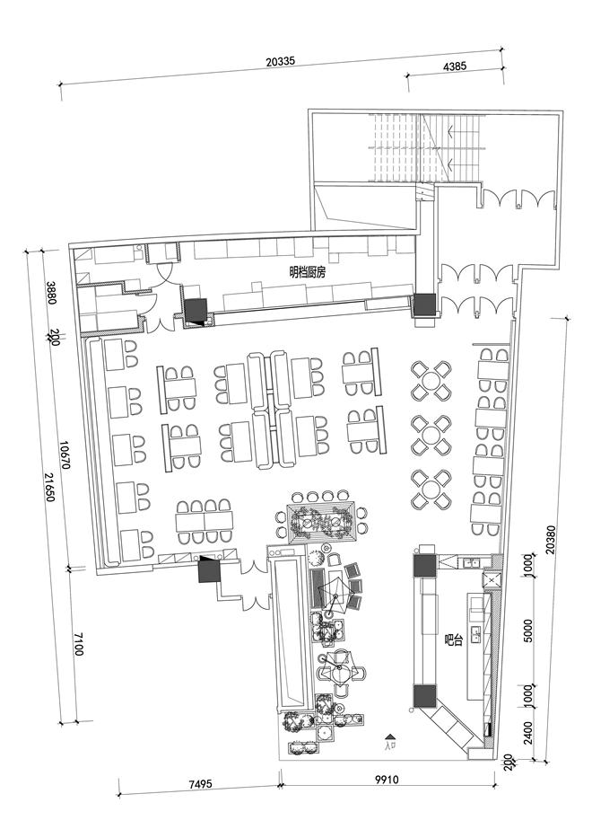
案例类型
餐饮空间
案例所在地
辽宁
案例面积
380 平方米
所用材料品牌
马可波罗
设计说明
A、与同类竞争性物业相比,作品独有的设计策划、市场定位:
在繁忙紧张的由钢架混凝土造就的都市CBD中,寻找一个放松自我的休闲驿站
B、与同类竞争性物业相比,作品在环境风格上的设计创新点:
更多说明
A、与同类竞争性物业相比,作品独有的设计策划、市场定位:
在繁忙紧张的由钢架混凝土造就的都市CBD中,寻找一个放松自我的休闲驿站
B、与同类竞争性物业相比,作品在环境风格上的设计创新点:
突出简约的线条、简单的材质、配合绚丽的绘画,营造简约而不简单的丰富氛围
C、与同类竞争性物业相比,作品在空间布局上的设计创新点:
利用可移动的装饰架,划分出不同的空间感受,满足使用者私密性以及多样性的需求;同时又可完全打开成一个整体空间,满足百人的都市派对的使用需求
D、与同类竞争性物业相比,作品在设计选材上的设计创新点:
硬装主材全部以钢、铁、玻璃、石材、瓷砖等防火材料为主,满足商场地下空间的防火要求,多彩的墙画、原木餐桌以及绿植的搭配共同营造出舒适的都市休闲空间
E、与同类竞争性物业相比,作品在投入运营后的出众经营效果:
开业两个月以来的日营业额持续上升,并且远超业主方之前已开业三家店的营业额;同时给经营并不算很景气的商场增加了很高的人气。
01首页
96426136713758566
125702827065803548
291778214283540024
334178551711723208
375663589899605565
451648405477559462
529622247891721769
578321295841582730
784706850588611505
837864608597884450
897064712881288551
02857208977737482137
我的更多案例
匿名:
验证码:
案例评论
共1页 首页 上一页
1
下一页 末页
收藏目录
:
全部