地区不限
北京
上海
天津
重庆
安徽
福建
甘肃
广东
广西
贵州
海南
河北
河南
黑龙江
湖北
湖南
吉林
江苏
江西
辽宁
内蒙古
宁夏
青海
山东
山西
陕西
四川
西藏
新疆
云南
浙江
台湾
香港
澳门
国外
类型不限
建筑设计师
室内设计师
景观设计师
其他个人会员
建筑设计公司
室内设计公司
景观设计公司
家装公司
公装公司
其他公司
全部设计师
全部设计公司
级别不限
会员
推荐会员
精英设计师
建案例
传图片
写文章
登陆
|
注册
|
帮助
用户名:
密码:
验证码:
自动登陆
(网吧勿用)
免费注册
找回密码
·
KUMO KUMO新总部办公空间
·
中国国际家具展览会30周年启幕
·
米兰国际家具展│构建面向未来的世界
·
北京——板泉之野民宿与营地
·
奥地利Gro?weikersdorf社区中心
·
提高空间灵活性,激发市民自豪感
·
Mayora总部食堂,在花园中就餐
·
[最新]声学遇见美学大赛启动
·
[最新]工厂造零件现场拼房子
·
[最新]多地推进住宅"上保险"
首页
档案
图片
案例
文章
留言
收藏
关注/粉丝
写信
曾帝的设计师家园
http://1115548.china-designer.com/
委托设计
推荐好友
收藏网址
为了您更好的使用本网站,请您不要禁止javascript。
我的档案
目前状态:
|
|
家园号:1115548
姓名:曾帝 [重庆 ]
设计师类型:室内设计师
查看详细资料
在线呼叫
我的案例
展开所有案例
所有案例
(1)
按照案例性质分类
住宅公寓
(1)
相关案例
摩登华尔兹
2016/9/20
新绿城生活
2016/9/19
【怡·宁静】
2016/9/19
江与城蔚澜岸
2016/9/19
台北印象
2016/9/15
我的案例
融侨花样派
标签:
三居
美式
闲静轻松
灰色
2016/9/13 15:21:23
评论
(0)
浏览
()
收藏
(2)
上一项 下一项
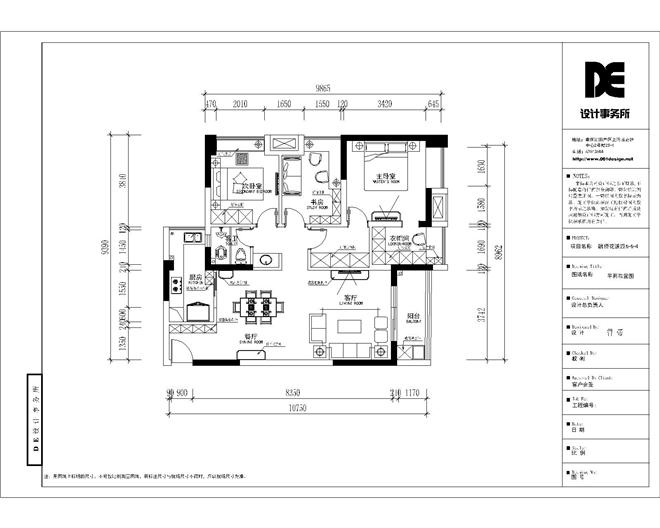
案例名称
融侨花样派
案例投资总额
27 万元
作者
曾帝
设计是否选用
竣工项目案例
设计类型
室内设计
案例类型
住宅公寓
案例所在地
重庆
案例面积
86 平方米
所用材料品牌
迪冉家具
设计说明
A、作品对业主居住需求、生活价值的独特挖掘角度:
本案是一个年轻的业主,为父母装修设计的房子。设计上虽然选择年轻人较为喜爱的现代美式,但却相比更为简洁干练,方便实用。后期软装上加入了些法式元素,让
更多说明
A、作品对业主居住需求、生活价值的独特挖掘角度:
本案是一个年轻的业主,为父母装修设计的房子。设计上虽然选择年轻人较为喜爱的现代美式,但却相比更为简洁干练,方便实用。后期软装上加入了些法式元素,让空间又不至于单调。
B、作品在环境风格上的设计创新点:
家不需要奢华,但一定要雅致。一个摆件、一块地毯,甚至一个壁灯,都可以让你对家无限眷恋。
C、作品在空间布局上的设计创新点:
如果将整个居室的室内设计比喻成一部耐人寻味的电影的话,那么家居设计就是这电影中时时出现在关键时刻的电影配乐,或者说插曲。电影插曲总在最打动人心的时刻出现,有着画龙点睛的作用。空间感明显比装修前变大,正是设计的魔力。
D、作品在设计选材上的设计创新点:
将美式风格简约化,后期又加入了法式的清新元素,混搭得浑然天成,让人眼前一亮。
E、作品在业主使用后的出众效果与评价:
业主以及业主的父母都非常开明,对设计不拘一格,给了设计师很大的空间,他们对这套设计都非常满意,出色的单品搭配,让这个家更有范儿。
餐厅
餐厅
餐厅
餐厅
厨房
客厅
客厅
客厅
客厅
客厅
书房
卫生间
主卧
主卧
主卧
平面布置
我的更多案例
匿名:
验证码:
案例评论
共1页 首页 上一页
1
下一页 末页
收藏目录
:
全部