易装修搜索
  建案例 传图片写文章 登陆  |  注册  |  帮助   
   ·KUMO KUMO新总部办公空间        ·中国国际家具展览会30周年启幕        ·米兰国际家具展│构建面向未来的世界        ·北京——板泉之野民宿与营地        ·奥地利Gro?weikersdorf社区中心        ·提高空间灵活性,激发市民自豪感        ·Mayora总部食堂,在花园中就餐        ·[最新]声学遇见美学大赛启动        ·[最新]工厂造零件现场拼房子        ·[最新]多地推进住宅"上保险"    
杨坤的设计师家园-杨坤

     

目前状态: 不在线| 写信 |

  • 家园号:1114618
  • 姓名:杨坤 [湖北 ]
  • 设计师类型:室内设计师
  • 查看详细资料
收起/展开本栏目按照案例性质分类
设计师家园-摩登华尔兹

摩登华尔兹

2016/9/20
设计师家园-新绿城生活

新绿城生活

2016/9/19
设计师家园-【怡·宁静】

【怡·宁静】

2016/9/19
设计师家园-江与城蔚澜岸

江与城蔚澜岸

2016/9/19
设计师家园-台北印象

台北印象

2016/9/15

清风徐来 
标签: 三居  混搭  青春活力  简约大气   2016/8/10 1:47:32
评论(0)   浏览()  收藏(0) 上一项 上一项      下一项 下一项
案例名称 清风徐来 案例投资总额 32  万元
作者 杨坤 设计是否选用 竣工项目案例
设计类型 室内设计 案例类型 住宅公寓
案例所在地 湖北  案例面积 126  平方米
所用材料品牌 安华洁具、大自然地板、郁金香墙纸
设计说明 A、作品对业主居住需求、生活价值的独特挖掘角度:
清风徐来 水波不兴 这里浅浅的灰绿色有着离离原上草的生机盎然与春风吹又生的婉约诗意,这里的浅杏仁色的温润、淡雅,如涓涓流水般节奏舒缓,似薄薄轻纱办 更多说明
01 (1)
清风徐来-杨坤的设计师家园-三居,混搭,青春活力,简约大气
01 (2)
清风徐来-杨坤的设计师家园-三居,混搭,青春活力,简约大气
01 (3)
清风徐来-杨坤的设计师家园-三居,混搭,青春活力,简约大气
01 (4)
清风徐来-杨坤的设计师家园-三居,混搭,青春活力,简约大气
01 (5)
清风徐来-杨坤的设计师家园-三居,混搭,青春活力,简约大气
01 (6)
清风徐来-杨坤的设计师家园-三居,混搭,青春活力,简约大气
01 (7)
清风徐来-杨坤的设计师家园-三居,混搭,青春活力,简约大气
01 (8)
清风徐来-杨坤的设计师家园-三居,混搭,青春活力,简约大气
01 (9)
清风徐来-杨坤的设计师家园-三居,混搭,青春活力,简约大气
01 (10)
清风徐来-杨坤的设计师家园-三居,混搭,青春活力,简约大气
01 (11)
清风徐来-杨坤的设计师家园-三居,混搭,青春活力,简约大气
01 (12)
清风徐来-杨坤的设计师家园-三居,混搭,青春活力,简约大气
01 (13)
清风徐来-杨坤的设计师家园-三居,混搭,青春活力,简约大气
01 (14)
清风徐来-杨坤的设计师家园-三居,混搭,青春活力,简约大气
01 (15)
清风徐来-杨坤的设计师家园-三居,混搭,青春活力,简约大气
01 (16)
清风徐来-杨坤的设计师家园-三居,混搭,青春活力,简约大气
01 (17)
清风徐来-杨坤的设计师家园-三居,混搭,青春活力,简约大气
01 (18)
清风徐来-杨坤的设计师家园-三居,混搭,青春活力,简约大气
01 (19)
清风徐来-杨坤的设计师家园-三居,混搭,青春活力,简约大气
01 (20)
清风徐来-杨坤的设计师家园-三居,混搭,青春活力,简约大气
01 (21)
清风徐来-杨坤的设计师家园-三居,混搭,青春活力,简约大气
01 (22)
清风徐来-杨坤的设计师家园-三居,混搭,青春活力,简约大气
01 (23)
清风徐来-杨坤的设计师家园-三居,混搭,青春活力,简约大气
01 (24)
清风徐来-杨坤的设计师家园-三居,混搭,青春活力,简约大气
01 (25)
清风徐来-杨坤的设计师家园-三居,混搭,青春活力,简约大气
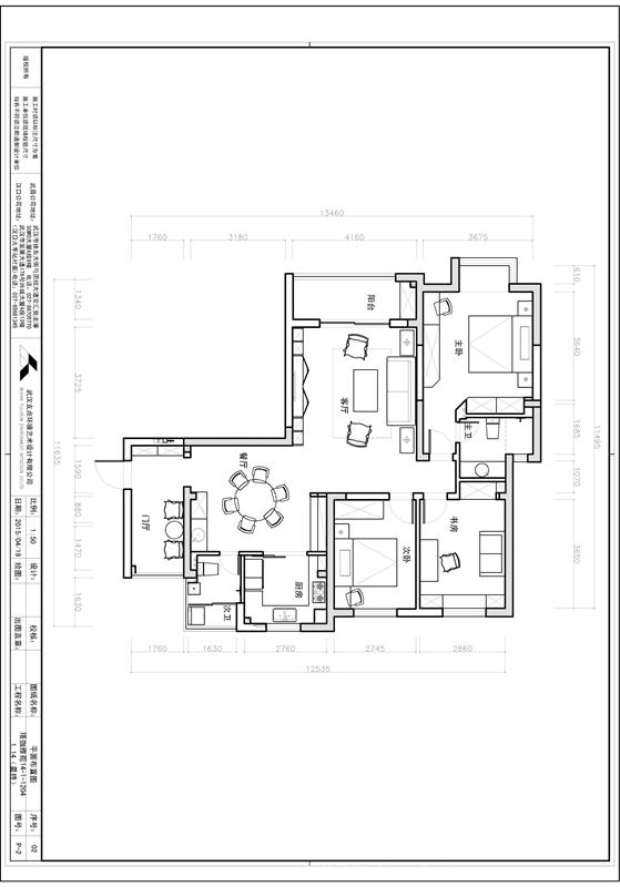
珞珈雅苑14-1-1204 1.14(最终)-平面1
清风徐来-杨坤的设计师家园-三居,混搭,青春活力,简约大气
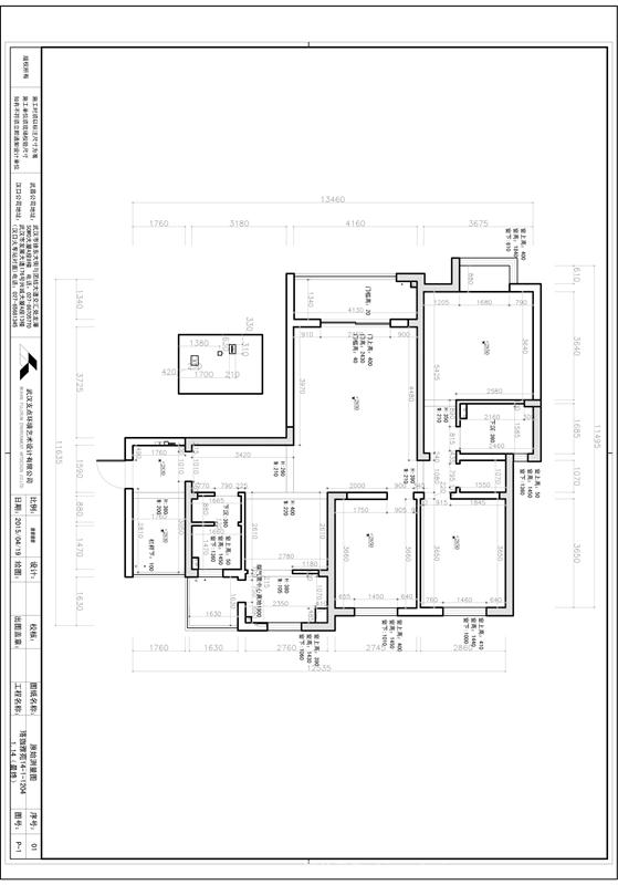
珞珈雅苑14-1-1204 1.14(最终)-平面2
清风徐来-杨坤的设计师家园-三居,混搭,青春活力,简约大气

我的更多案例
设计师家园-清风徐来 设计师家园-迷恋北欧 设计师家园-拉普兰?秋色
匿名:
验证码: 点击换一个!    
案例评论
共1页     首页  上一页    1  下一页  末页