地区不限
北京
上海
天津
重庆
安徽
福建
甘肃
广东
广西
贵州
海南
河北
河南
黑龙江
湖北
湖南
吉林
江苏
江西
辽宁
内蒙古
宁夏
青海
山东
山西
陕西
四川
西藏
新疆
云南
浙江
台湾
香港
澳门
国外
类型不限
建筑设计师
室内设计师
景观设计师
其他个人会员
建筑设计公司
室内设计公司
景观设计公司
家装公司
公装公司
其他公司
全部设计师
全部设计公司
级别不限
会员
推荐会员
精英设计师
建案例
传图片
写文章
登陆
|
注册
|
帮助
用户名:
密码:
验证码:
自动登陆
(网吧勿用)
免费注册
找回密码
·
KUMO KUMO新总部办公空间
·
中国国际家具展览会30周年启幕
·
米兰国际家具展│构建面向未来的世界
·
北京——板泉之野民宿与营地
·
奥地利Gro?weikersdorf社区中心
·
提高空间灵活性,激发市民自豪感
·
Mayora总部食堂,在花园中就餐
·
[最新]声学遇见美学大赛启动
·
[最新]工厂造零件现场拼房子
·
[最新]多地推进住宅"上保险"
首页
档案
图片
案例
文章
留言
收藏
关注/粉丝
写信
徐麟的设计师家园
http://1114481.china-designer.com/
委托设计
推荐好友
收藏网址
为了您更好的使用本网站,请您不要禁止javascript。
我的档案
目前状态:
|
|
家园号:1114481
姓名:徐麟 [辽宁 ]
设计师类型:室内设计师
查看详细资料
在线呼叫
我的案例
展开所有案例
所有案例
(4)
按照案例性质分类
相关案例
紫风阁私人会所
2016/9/14
暨阳湖BOSS酒吧
2016/9/14
摩西CLUB
2016/9/14
庭娜SAP
2016/9/14
内蒙古通辽万达电影城
2016/9/13
我的案例
银河量贩式KTV
标签:
欧式复古风格KTV
2016/8/10 10:13:15
评论
(0)
浏览
()
收藏
(1)
上一项
下一项
案例名称
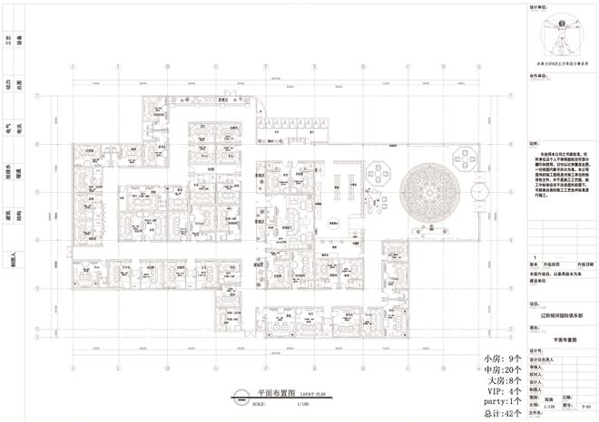
银河量贩式KTV
案例投资总额
800 万元
作者
徐麟
设计是否选用
竣工项目案例
设计类型
室内设计
案例类型
娱乐空间
案例所在地
辽宁
案例面积
2200 平方米
所用材料品牌
moooi软装
设计说明
A、与同类竞争性物业相比,作品独有的设计策划、市场定位:
设计之初,我们会与管理公司进行交流,目的是将商业理念与设计理念相得益彰。设计元素迎合了不同年龄段消费者的口味,上到七八十岁老人下到九零后零
更多说明
A、与同类竞争性物业相比,作品独有的设计策划、市场定位:
设计之初,我们会与管理公司进行交流,目的是将商业理念与设计理念相得益彰。设计元素迎合了不同年龄段消费者的口味,上到七八十岁老人下到九零后零零后的年轻人,都喜欢在KTV里拍照留念,让消费者在KTV中娱乐的同时发觉到自己更年轻更时尚。
B、与同类竞争性物业相比,作品在环境风格上的设计创新点:
以颜色为切入点,彩绘玻璃,复古红砖都直白的表现了欧式复古风格的独特魅力。用色彩表现空间的张力,再加以灯光音频来达到独特的视觉效果,不同的色彩符号,糅合新颖的造型,以独特的审美角度打造独树的KTV风格。
C、与同类竞争性物业相比,作品在空间布局上的设计创新点:
高举架的大堂是KTV空间的特点,利用这个特点对大堂天花进行欧式教堂穹顶的设计,走廊内部将欧式街景融入其中。将不同房型的包房进行分区方便业主营业规划,也是我们设计创新点之一。
D、与同类竞争性物业相比,作品在设计选材上的设计创新点:
除了欧式复古的设计创新点外,我们还将艺术性与电影场景融合到作品里。纯艺术的装置、大师的艺术品与KTV相结合,使消费者产生主观的体验感,新奇感。
E、与同类竞争性物业相比,作品在投入运营后的出众经营效果:
银河量贩式KTV已经成为辽阳市KTV行业的引领者,独树一帜的设计风格与管理者的经营的配合使得银河深受大众的喜爱。
1
2
5
6
7
8
9
10
11
12
13
14
16
18
19
20
21
22
23
24
25
26
27
28
29
31
32
33
34
辽阳
我的更多案例
匿名:
验证码:
案例评论
共1页 首页 上一页
1
下一页 末页
收藏目录
:
全部