地区不限
北京
上海
天津
重庆
安徽
福建
甘肃
广东
广西
贵州
海南
河北
河南
黑龙江
湖北
湖南
吉林
江苏
江西
辽宁
内蒙古
宁夏
青海
山东
山西
陕西
四川
西藏
新疆
云南
浙江
台湾
香港
澳门
国外
类型不限
建筑设计师
室内设计师
景观设计师
其他个人会员
建筑设计公司
室内设计公司
景观设计公司
家装公司
公装公司
其他公司
全部设计师
全部设计公司
级别不限
会员
推荐会员
精英设计师
建案例
传图片
写文章
登陆
|
注册
|
帮助
用户名:
密码:
验证码:
自动登陆
(网吧勿用)
免费注册
找回密码
·
KUMO KUMO新总部办公空间
·
中国国际家具展览会30周年启幕
·
米兰国际家具展│构建面向未来的世界
·
北京——板泉之野民宿与营地
·
奥地利Gro?weikersdorf社区中心
·
提高空间灵活性,激发市民自豪感
·
Mayora总部食堂,在花园中就餐
·
[最新]声学遇见美学大赛启动
·
[最新]工厂造零件现场拼房子
·
[最新]多地推进住宅"上保险"
首页
档案
图片
案例
文章
留言
收藏
关注/粉丝
写信
吴峻冬的设计师家园
http://1114420.china-designer.com/
委托设计
推荐好友
收藏网址
为了您更好的使用本网站,请您不要禁止javascript。
我的档案
目前状态:
|
|
家园号:1114420
姓名:吴峻冬 [广东 ]
设计师类型:室内设计师
查看详细资料
在线呼叫
我的案例
展开所有案例
所有案例
(3)
按照案例性质分类
相关案例
东湖城样板间
2016/9/20
周浦明天华城样板间
2016/9/16
祥云里销售中心
2016/9/14
天津蓟县山湖郡苑销售中心
2016/9/14
新藏式之远方的梦
2016/9/14
我的案例
江门摩根国际城市综合体商业样板房
标签:
其他样板间
现代简约
工业风格 商住两用 LOFT现代
2016/8/17 15:24:36
评论
(0)
浏览
()
收藏
(0)
上一项
下一项
案例名称
江门摩根国际城市综合体商业样板房
案例投资总额
75 万元
作者
吴峻冬
设计是否选用
竣工项目案例
设计类型
室内设计
案例类型
样板间/售楼处
案例所在地
广东
案例面积
80 平方米
所用材料品牌
唯美L&D
KD科定
克格伯建材
设计说明
A、作品对城市需求与价值的独特挖掘角度:
如果说灵活高效是现代城市人生活和工作的主要旋律,那么兼具了个性与艺术,实用与多变的LOFT风格建筑就是能满足各种需求,将现代潮流演绎到淋漓尽致的最完美载体
更多说明
A、作品对城市需求与价值的独特挖掘角度:
如果说灵活高效是现代城市人生活和工作的主要旋律,那么兼具了个性与艺术,实用与多变的LOFT风格建筑就是能满足各种需求,将现代潮流演绎到淋漓尽致的最完美载体。本案将LOFT板房设计成商、住两用型的公寓,将服装工作室和居住功能相融合。
B、作品在环境风格上的设计创新点:
特别值得一提的是贯穿于各处空间的线条,如一条条神奇具有生命的纽带,纵横交错,连接各种材质,分割空间,创造出储物、操作等各种功能装置,而对线条比例的精准控制,更是化解了钢铁的冰冷感,使各个角落都别具韵律的美感。穿插于一、二楼之间的线条层架,使卧室与工作间相互隔开又彼此贯穿,私密性和开放性以不可思议的方式共存。
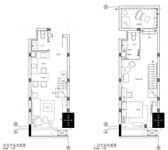
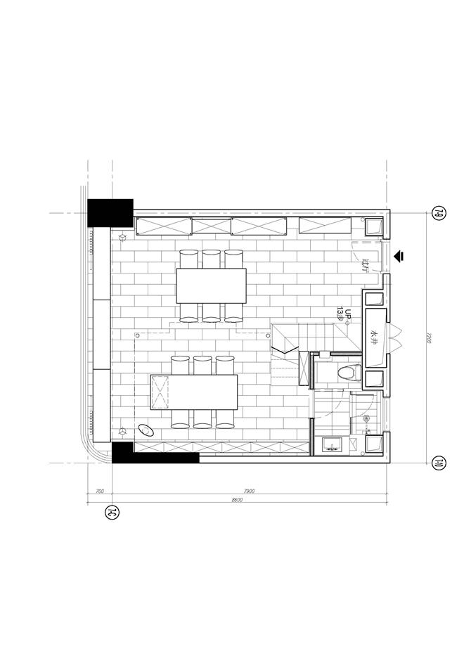
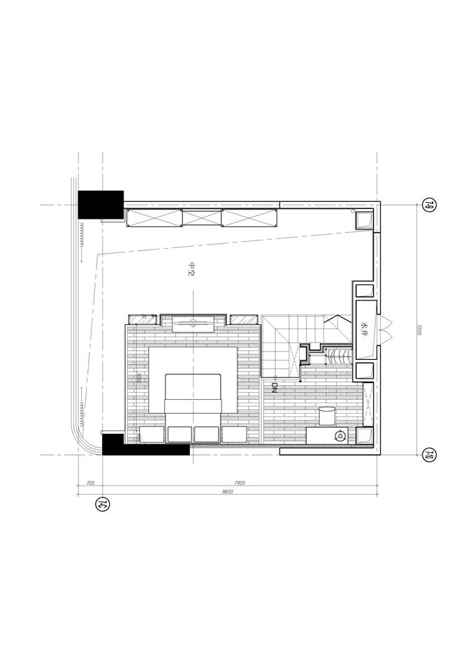
C、作品在空间布局上的设计创新点:
理性而巧妙分割出了展览区,办公区,储存间,水吧,操作台,卧室,书房,衣帽间,卫生间等各种空间,将LOFT实用性发挥到无可挑剔的地步,多方位满足工作和生活的各种需求。
D、作品在设计选材上的设计创新点:
在设计风格上该样板房有典型工业风的元素,裸露的红砖墙体,原始的天花,水泥墙面,又搭配了钢架、玻璃和木材,洋溢着满满的现代感。温暖的木地板,精心挑选的地毯,独出心裁的床头装饰,备显精致,与工业风造成强烈的视觉反差,能带给人多样又前卫,新鲜的空间体验。
E、作品在投入运营后的出众效果与评价:
板房自开放以来,在当地的反响十分良好,吸引了庞大的客户前往咨询,更被外界评为风格别出心裁,独树一帜。
D平面图-江门摩根国际商业样板房(1)
D平面图-江门摩根国际商业样板房(2)
E实景图-江门摩根国际商业样板房(1)
E实景图-江门摩根国际商业样板房(2)
E实景图-江门摩根国际商业样板房(3)
E实景图-江门摩根国际商业样板房(4)
E实景图-江门摩根国际商业样板房(5)
E实景图-江门摩根国际商业样板房(6)
E实景图-江门摩根国际商业样板房(7)
E实景图-江门摩根国际商业样板房(8)
E实景图-江门摩根国际商业样板房(9)
E实景图-江门摩根国际商业样板房(10)
E实景图-江门摩根国际商业样板房(11)
我的更多案例
匿名:
验证码:
案例评论
共1页 首页 上一页
1
下一页 末页
收藏目录
:
全部