地区不限
北京
上海
天津
重庆
安徽
福建
甘肃
广东
广西
贵州
海南
河北
河南
黑龙江
湖北
湖南
吉林
江苏
江西
辽宁
内蒙古
宁夏
青海
山东
山西
陕西
四川
西藏
新疆
云南
浙江
台湾
香港
澳门
国外
类型不限
建筑设计师
室内设计师
景观设计师
其他个人会员
建筑设计公司
室内设计公司
景观设计公司
家装公司
公装公司
其他公司
全部设计师
全部设计公司
级别不限
会员
推荐会员
精英设计师
建案例
传图片
写文章
登陆
|
注册
|
帮助
用户名:
密码:
验证码:
自动登陆
(网吧勿用)
免费注册
找回密码
·
KUMO KUMO新总部办公空间
·
中国国际家具展览会30周年启幕
·
米兰国际家具展│构建面向未来的世界
·
北京——板泉之野民宿与营地
·
奥地利Gro?weikersdorf社区中心
·
提高空间灵活性,激发市民自豪感
·
Mayora总部食堂,在花园中就餐
·
[最新]声学遇见美学大赛启动
·
[最新]工厂造零件现场拼房子
·
[最新]多地推进住宅"上保险"
首页
档案
图片
案例
文章
留言
收藏
关注/粉丝
写信
徐彪的设计师家园
http://1110236.china-designer.com/
委托设计
推荐好友
收藏网址
为了您更好的使用本网站,请您不要禁止javascript。
我的档案
目前状态:
|
|
家园号:1110236
姓名:徐彪 [湖北 ]
设计师类型:室内设计师
查看详细资料
在线呼叫
我的案例
展开所有案例
所有案例
(4)
按照案例性质分类
住宅公寓
(3)
别墅
(1)
相关案例
摩登华尔兹
2016/9/20
新绿城生活
2016/9/19
【怡·宁静】
2016/9/19
江与城蔚澜岸
2016/9/19
台北印象
2016/9/15
我的案例
晨曦 秋光
标签:
四居
美式
简约大气
青春活力
闲静轻松
2016/8/10 2:08:03
评论
(0)
浏览
()
收藏
(0)
上一项
下一项
案例名称
晨曦 秋光
案例投资总额
50 万元
作者
徐彪
设计是否选用
竣工项目案例
设计类型
室内设计
案例类型
住宅公寓
案例所在地
湖北
案例面积
140 平方米
所用材料品牌
道格拉斯瓷砖、科勒洁具、富得利地板
设计说明
A、作品对业主居住需求、生活价值的独特挖掘角度:
说到美式,也许许多人还沉浸在醇厚的色调,严谨的实木拼花,或者泛着历史沧桑感的皮革中。同时,厚重,古典,陈旧,也是美式给人的深刻印象。但有时候我们看
更多说明
A、作品对业主居住需求、生活价值的独特挖掘角度:
说到美式,也许许多人还沉浸在醇厚的色调,严谨的实木拼花,或者泛着历史沧桑感的皮革中。同时,厚重,古典,陈旧,也是美式给人的深刻印象。但有时候我们看到的美式,就像我们看到的外国人的中式风格,那只是一种以自己的观感臆造出来的形象,时代在变化,风格,也同样在变化。每个时代都有自己的节奏,每个风格都会在自己的时代呈现自己独有的魅力。
B、作品在环境风格上的设计创新点:
这个空间中,我们摒弃了许多传统的美式风格的元素,力求整体更简洁明快,适合现代人的生活方式和审美习惯。在格局方面并没有特意去追求纯粹的美式或者特异性,而是一个非常典型的国内居住方式。
C、作品在空间布局上的设计创新点:
客厅顶面选用了更加简洁实用的LED筒灯,舍弃了传统的吊灯方式,餐厅选用了具有更多功能的吊扇灯,同时主卧也通过周边的辅助灯光来代替传统的主灯照明。在灯光的造型和方式上,我们力求简单实用,温馨舒适。色彩方面,在不同的区域,我们采用了不同纯度和明度的色彩,客厅选用了比较温和明亮的黄色系,局部搭配了淡青和橙黄色,作为一个开放式的空间,这样能很好的表现主人的开朗大方,热情而又柔情的性格,主卧选用了安静的浅灰色调,次卧的灰绿色调,能让人更快的进入放松的状态。
D、作品在设计选材上的设计创新点:
儿童房淡淡的米白色条纹,搭配深蓝色的床品,让人有种如坠梦中的沉醉。在卫生间的配色上,我们也选用了新的材质和配色,打破了传统卫生间给人的生硬冰冷的感觉。白色的地铁砖,天然的大理石拼贴,配合淡雅的灰调,清晰中又透着一种小资独有的情调。白色在整体空间中是以一种不经意而又必然的姿态出现,就如同国画中的留白,自然而和谐。
E、作品在业主使用后的出众效果与评价:
从选材到造型,从格局到色彩,我们用自己的态度,表现我们自己的性格,风格,不过就是一种方式罢了。
2
3
5
6.5
6.8
6
7.5
7
8.5
8
9.5
9
10
11
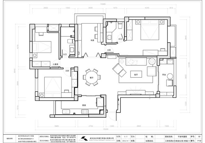
大华南湖公园(终稿)1-12-平面
我的更多案例
匿名:
验证码:
案例评论
共1页 首页 上一页
1
下一页 末页
收藏目录
:
全部