地区不限
北京
上海
天津
重庆
安徽
福建
甘肃
广东
广西
贵州
海南
河北
河南
黑龙江
湖北
湖南
吉林
江苏
江西
辽宁
内蒙古
宁夏
青海
山东
山西
陕西
四川
西藏
新疆
云南
浙江
台湾
香港
澳门
国外
类型不限
建筑设计师
室内设计师
景观设计师
其他个人会员
建筑设计公司
室内设计公司
景观设计公司
家装公司
公装公司
其他公司
全部设计师
全部设计公司
级别不限
会员
推荐会员
精英设计师
建案例
传图片
写文章
登陆
|
注册
|
帮助
用户名:
密码:
验证码:
自动登陆
(网吧勿用)
免费注册
找回密码
·
KUMO KUMO新总部办公空间
·
中国国际家具展览会30周年启幕
·
米兰国际家具展│构建面向未来的世界
·
北京——板泉之野民宿与营地
·
奥地利Gro?weikersdorf社区中心
·
提高空间灵活性,激发市民自豪感
·
Mayora总部食堂,在花园中就餐
·
[最新]声学遇见美学大赛启动
·
[最新]工厂造零件现场拼房子
·
[最新]多地推进住宅"上保险"
首页
档案
图片
案例
文章
留言
收藏
关注/粉丝
写信
槃达建筑的设计师家园
http://1087377.china-designer.com/
委托设计
推荐好友
收藏网址
为了您更好的使用本网站,请您不要禁止javascript。
我的档案
目前状态:
|
|
家园号:1087377
姓名:孙大勇 [北京 ]
设计师类型:建筑设计师
查看详细资料
在线呼叫
我的案例
展开所有案例
所有案例
(4)
按照案例性质分类
相关案例
宁夏灵武市锦湖食府
2016/12/16
福州爱丽丝花园·蒸先生火锅餐厅
2016/9/26
老菜谱餐厅(低成本改装)
2016/9/19
同聚兴餐厅
2016/9/19
老蒲扇重庆火锅
2016/9/19
我的案例
鸿咖啡
标签:
西餐厅
田园
原生态
闲静轻松
棕色
绿色
灰色
2015/9/15 22:31:15
评论
(1)
浏览
()
收藏
(5)
上一项
下一项
案例名称
鸿咖啡
案例投资总额
20 万元
作者
孙大勇
设计是否选用
竣工项目案例
设计类型
室内设计
案例类型
餐饮空间
案例所在地
河北
案例面积
250 平方米
所用材料品牌
设计说明
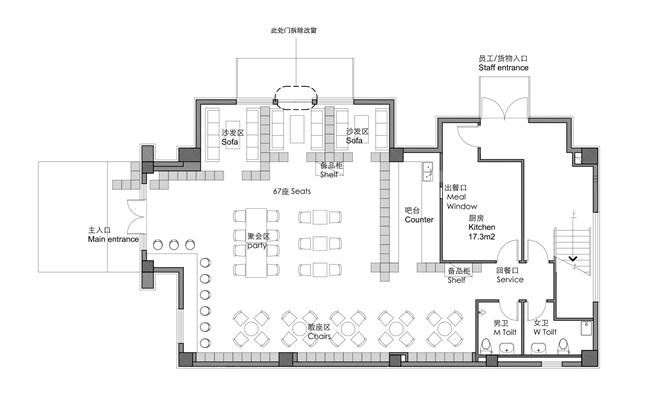
一处能够让顾客在雾霾笼罩的都市中呼吸到新鲜空气的咖啡馆——鸿咖啡。
咖啡馆内部由建筑钢筋搭建起来的栅格结构分隔内部空间,同时在栅格中融入盆栽、书柜及灯饰等多种功能,营造了一处温室花园的氛围
更多说明
一处能够让顾客在雾霾笼罩的都市中呼吸到新鲜空气的咖啡馆——鸿咖啡。
咖啡馆内部由建筑钢筋搭建起来的栅格结构分隔内部空间,同时在栅格中融入盆栽、书柜及灯饰等多种功能,营造了一处温室花园的氛围。在这里品尝一个下午茶,不仅舒缓了都市的紧张节奏,同时也获得了回归田园的生活体验。
在北京,人们习惯了加班、堵车同时也习惯了PM2.5。基于对生活环境是反思,槃达建筑受北京鸿坤集团委托为其名下品牌鸿咖啡提供室内空间方案设计。鸿咖啡首两家店分别落户于河北涿州和天津武清,并有望推广至中国其他城市。设计师希望能为今天雾霾笼罩的城市营造一处不仅能享受美味咖啡,而且还能呼吸到新鲜空气的室内环境。
通常建筑用的钢筋被转换为室内的分隔材料
钢筋通常隐藏于建筑结构墙体中不被人所见, 然而在重新涂成黑色并交叉搭建成网格系统后在鸿咖啡里却成为室内的焦点。使家具结构与建筑结构融为一个整体。塑造了空间整体性同时也让有限的空间变得更加深邃。
模块化的系统提高了咖啡馆灵活性
基于模数化的钢筋框架成为空间的主要分隔结构构架。单元化定制的木盒可以满足不同的功能需要,构架上可以放置深度不一的书架、绿植及灯饰。这个结构为空间提供充分的灵活性,来适应不同的地点、不同的结构和举办不同的活动的功能需要。
绿植让咖啡馆成为了一处室内氧吧
构架里种植了丰富的绿色植物来营造一个田园的氛围,其中的植物选择如吊兰、绿萝和剑蕨等都易打理、同时带有空气净化功能, 还有一些箱子里种植了调味用的香草。这些植物与新鲜调制的咖啡一起为鸿咖啡创造香气芬芳的舒适环境。粗糙的混凝土墙面、皮制的沙发和木质桌椅还有新鲜调制的咖啡为顾客带来一种回归自然的感官体验,使鸿咖啡成为城市中的一片小绿洲,不仅能吸引顾客前来品尝咖啡,并能在舒适健康的环境中度过一个悠闲的下午。
咖啡馆随着植物的生长带给常客们持续变化的视觉享受
攀岩类的植物将随着时间的推移慢慢沿着钢筋构架生长,逐渐地覆盖部分钢筋并成为咖啡馆里又一焦点。使室内空间与室外空间的界限打破,客人每次惠顾都会拥有新的感受,并留下新的回忆。室内的环境中同样可以体味四季的变换。咖啡馆记录着来到这里的人们生活中的点滴,同时也成为人们生命中一部分。
penda_HOME_Cafe_Photo (1)
penda_HOME_Cafe_Photo (2)
penda_HOME_Cafe_Photo (3)
penda_HOME_Cafe_Photo (4)
penda_HOME_Cafe_Photo (5)
penda_HOME_Cafe_Photo (6)
penda_HOME_Cafe_Photo (7)
penda_HOME_Cafe_Photo (8)
penda_HOME_Cafe_Photo (11)
penda_HOME_Cafe_Photo (12)
penda_HOME_Cafe_Photo (13)
penda_HOME_Cafe_Photo (14)
penda_HOME_Cafe_Photo (15)
penda_HOME_Cafe_Photo (16)
penda_HOME_Cafe_Photo (17)
HKCAFE_TIANJIN_PLAN_01
我的更多案例
匿名:
验证码:
案例评论
设计师家园总管
[设计师] 2015/9/19 23:27:59
恭喜您,此项目已入选china-designer优秀案例库,即日起7日内在网站首页热点推荐文字区随机出现,同时将长期在china-designer优秀案例库中展示,也将有机会入选网站系列图书。期待您更多的佳作。
家园主人的回复:
共1页 首页 上一页
1
下一页 末页
收藏目录
:
全部