地区不限
北京
上海
天津
重庆
安徽
福建
甘肃
广东
广西
贵州
海南
河北
河南
黑龙江
湖北
湖南
吉林
江苏
江西
辽宁
内蒙古
宁夏
青海
山东
山西
陕西
四川
西藏
新疆
云南
浙江
台湾
香港
澳门
国外
类型不限
建筑设计师
室内设计师
景观设计师
其他个人会员
建筑设计公司
室内设计公司
景观设计公司
家装公司
公装公司
其他公司
全部设计师
全部设计公司
级别不限
会员
推荐会员
精英设计师
建案例
传图片
写文章
登陆
|
注册
|
帮助
用户名:
密码:
验证码:
自动登陆
(网吧勿用)
免费注册
找回密码
·
KUMO KUMO新总部办公空间
·
中国国际家具展览会30周年启幕
·
米兰国际家具展│构建面向未来的世界
·
北京——板泉之野民宿与营地
·
奥地利Gro?weikersdorf社区中心
·
提高空间灵活性,激发市民自豪感
·
Mayora总部食堂,在花园中就餐
·
[最新]声学遇见美学大赛启动
·
[最新]工厂造零件现场拼房子
·
[最新]多地推进住宅"上保险"
首页
档案
图片
案例
文章
留言
收藏
关注/粉丝
写信
Jacqueline Chau的设计师家园
http://1087110.china-designer.com/
委托设计
推荐好友
收藏网址
为了您更好的使用本网站,请您不要禁止javascript。
我的档案
目前状态:
|
|
家园号:1087110
姓名:邹子琪 [香港 ]
设计师类型:室内设计师
查看详细资料
在线呼叫
我的案例
展开所有案例
所有案例
(3)
按照案例性质分类
别墅
(2)
相关案例
花样年华
2016/9/19
海河大观
2016/9/18
富?村?山居
2016/9/15
LATTE
2016/9/15
台灣城市別墅-騎出樂活
2016/9/14
我的案例
麗宮別墅236号
标签:
联排别墅
2015/9/15 21:36:48
评论
(0)
浏览
()
收藏
(1)
上一项
下一项
案例名称
麗宮別墅236号
案例投资总额
1227 万元
作者
邹子琪
设计是否选用
竣工项目案例
设计类型
室内设计
案例类型
别墅
案例所在地
北京
案例面积
880 平方米
所用材料品牌
定制
设计说明
A、作品对业主居住需求、生活价值的独特挖掘角度:
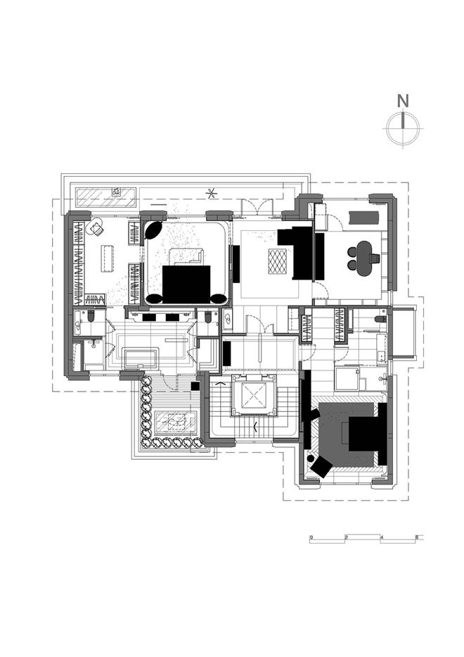
丽宫别墅位于首都国际机场高速公路沿线的低密度别墅豪宅区,为区内著名新生代顶尖豪宅别墅, 别墅建筑以典雅和格调堂皇的欧陆风格设计,面积约880平方米
更多说明
A、作品对业主居住需求、生活价值的独特挖掘角度:
丽宫别墅位于首都国际机场高速公路沿线的低密度别墅豪宅区,为区内著名新生代顶尖豪宅别墅, 别墅建筑以典雅和格调堂皇的欧陆风格设计,面积约880平方米,楼高四层。 设计师以现代时尚的概念,鋭意为年青贵族的户主体验非凡气派的舒适居住空间。
B、作品在环境风格上的设计创新点:
别墅的业主为富知识的年青贵族,专业丶含蓄。对生活充满热诚; 喜爱知识、收藏书藉的高尚品格。不仅注意心灵享受之外,交友广阔的业主也追求社交上的开放,其性格动与静兼容恰当的生活态度尽反眏于其起居住处,加上业主本为英国世家显赫的贵族,别墅以“现代英伦风”为设计中心主题,以精致物料手艺及独特奢华格调,衬托出含蓄而原有贵族高雅的特质。
C、作品在空间布局上的设计创新点:
体设计及布局经过细心安排,暖灰色及啡色色系加上精心耀目的特色点缀,突显业主有深度丶含蓄,但不失开放的个性,赵然地位尽能呈现。 地下层设计为休戏空间,古典镜格仔天花加上精细的手艺大大提升天花高度。特别精心的平面布局,利用特色屏风制造出视觉上全开放的感觉,巧妙地制造出既开放又私密兼备的空间,也营造出一份稳重而带有点玩味的独特品味。 主卧室以特色木皮色拼花墙身连贯整个空间,为整主卧室带来丰富的视觉效果。微微圆角的室内空间再加上立体地毯丶硬朗中呈献出奢华而温馨的感觉。卫生间花纹大理石尽显贵气。
D、作品在设计选材上的设计创新点:
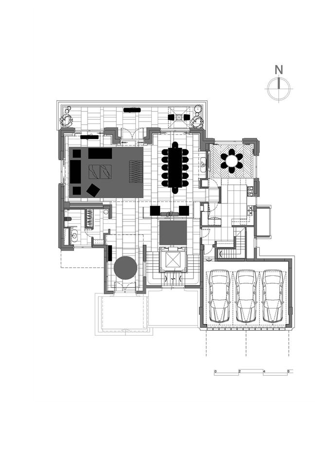
玄关被带有时代感元素的花格屏风轻轻包围加附有质感皮革墙身,营造出舒适及私密感觉,利落而带有层次大型特色的水晶吊灯,增添豪华而立体的空间。起居室大型主题墙楺合现代英伦图书,收藏阁概念设计配合沉实而大方的石材皮革丶布艺及现代家具,呈现了含蓄有品味及内涵的气氛。夸张丶流线形水晶大吊灯连贯了餐厅及起居室空间,在含蓄丶沉实中突显了豪华的品味空间。
E、作品在业主使用后的出众效果与评价:
不适用
流线形水晶大吊灯连贯餐厅及起居室空间
起居室空间
休戏空间
起居室空间
餐厅
玄关
特色屏风
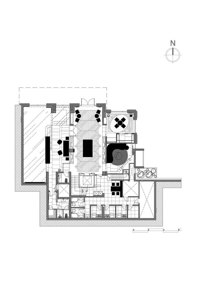
主卧室
卧室
卧室
浴室
游泳池
休戏空间
1楼平面图
2楼平面图
3楼平面图
地面平面图
我的更多案例
匿名:
验证码:
案例评论
共1页 首页 上一页
1
下一页 末页
收藏目录
:
全部