地区不限
北京
上海
天津
重庆
安徽
福建
甘肃
广东
广西
贵州
海南
河北
河南
黑龙江
湖北
湖南
吉林
江苏
江西
辽宁
内蒙古
宁夏
青海
山东
山西
陕西
四川
西藏
新疆
云南
浙江
台湾
香港
澳门
国外
类型不限
建筑设计师
室内设计师
景观设计师
其他个人会员
建筑设计公司
室内设计公司
景观设计公司
家装公司
公装公司
其他公司
全部设计师
全部设计公司
级别不限
会员
推荐会员
精英设计师
建案例
传图片
写文章
登陆
|
注册
|
帮助
用户名:
密码:
验证码:
自动登陆
(网吧勿用)
免费注册
找回密码
·
KUMO KUMO新总部办公空间
·
中国国际家具展览会30周年启幕
·
米兰国际家具展│构建面向未来的世界
·
北京——板泉之野民宿与营地
·
奥地利Gro?weikersdorf社区中心
·
提高空间灵活性,激发市民自豪感
·
Mayora总部食堂,在花园中就餐
·
[最新]声学遇见美学大赛启动
·
[最新]工厂造零件现场拼房子
·
[最新]多地推进住宅"上保险"
首页
档案
图片
案例
文章
留言
收藏
关注/粉丝
写信
刘坤的设计师家园
http://1086651.china-designer.com/
委托设计
推荐好友
收藏网址
为了您更好的使用本网站,请您不要禁止javascript。
我的档案
目前状态:
|
|
家园号:1086651
姓名:刘坤 [江西 ]
设计师类型:室内设计师
查看详细资料
在线呼叫
我的案例
展开所有案例
所有案例
(5)
按照案例性质分类
相关案例
爱莲说
2016/9/15
沈阳绿波廊永乐汇商务会馆
2016/9/15
沈阳绿波廊永乐汇商务会馆
2016/9/15
深圳碧海湾高尔夫翡翠铭汇练习场
2016/9/14
迈康国际健身会所
2016/9/14
我的案例
茗悦天下
标签:
茶馆
新中式
黄色
白色
棕色
沉稳庄重
闲静轻松
2015/9/8 9:28:47
评论
(1)
浏览
()
收藏
(0)
上一项
下一项
案例名称
茗悦天下
案例投资总额
200 万元
作者
刘坤
设计是否选用
竣工项目案例
设计类型
室内设计
案例类型
休闲健身空间
案例所在地
江西
案例面积
566 平方米
所用材料品牌
揽人木原木 菠萝格原木,硅藻泥,木纹仿古砖,不锈钢,文化石,大理石
设计说明
该茶楼座落在南昌红谷滩新区,红谷滩作为南昌的新城,这里聚集着更多的外来人口,也充实着各种娱乐休闲业态;
本案定位为茶文化体验空间设计,主要经营瓷器、茶叶、香道培训、花艺并提供花器、书法等文
更多说明
该茶楼座落在南昌红谷滩新区,红谷滩作为南昌的新城,这里聚集着更多的外来人口,也充实着各种娱乐休闲业态;
本案定位为茶文化体验空间设计,主要经营瓷器、茶叶、香道培训、花艺并提供花器、书法等文人雅集活动;从功能分区上来说,一楼为产品展示区与销售区、二楼为品茗雅间及沙龙培训区,室内的艺术、禅意交相辉映;空间的材质选择上多选用揽人木原木作为饰面与实木线条贯穿整个空间,地面采用中国黑大理石与木纹仿古砖的结合使空间简洁素雅;在大面积留白的墙面上选用素水泥衬托更显空间的自然质朴,卫生间的菠萝格原木硬朗线条的对比更添加了空间的几分简练,门头外立面选用蝴蝶绿大理石干挂镶嵌高防光贴膜玻璃材质使门面简洁有次序并尊显品质。
茗悦天下
茗悦天下
茗悦天下
茗悦天下
茗悦天下
茗悦天下
茗悦天下
茗悦天下
茗悦天下
茗悦天下
茗悦天下
茗悦天下
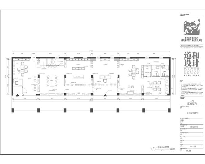
茗悦天下一层平面
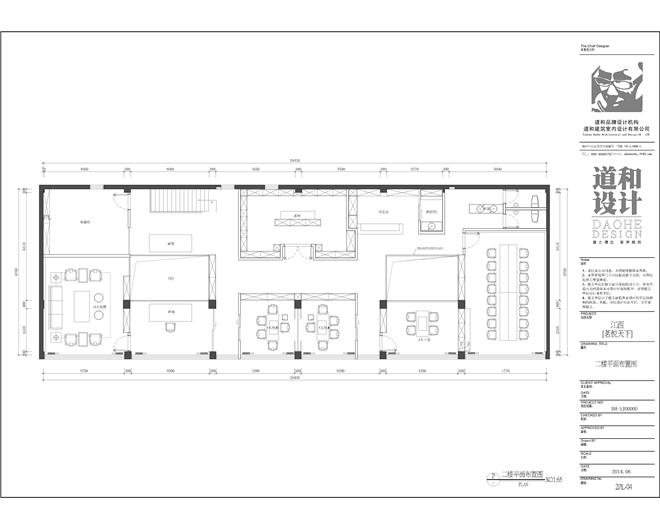
茗悦天下二层平面总图
我的更多案例
匿名:
验证码:
案例评论
设计师家园总管
[设计师] 2015/9/15 13:42:48
恭喜您,此项目已入选china-designer优秀案例库,即日起7日内在网站首页热点推荐文字区随机出现,同时将长期在china-designer优秀案例库中展示,也将有机会入选网站系列图书。期待您更多的佳作。
家园主人的回复:
共1页 首页 上一页
1
下一页 末页
收藏目录
:
全部