易装修搜索
  建案例 传图片写文章 登陆  |  注册  |  帮助   
   ·KUMO KUMO新总部办公空间        ·中国国际家具展览会30周年启幕        ·米兰国际家具展│构建面向未来的世界        ·北京——板泉之野民宿与营地        ·奥地利Gro?weikersdorf社区中心        ·提高空间灵活性,激发市民自豪感        ·Mayora总部食堂,在花园中就餐        ·[最新]声学遇见美学大赛启动        ·[最新]工厂造零件现场拼房子        ·[最新]多地推进住宅"上保险"    
阮阮的设计师家园-阮秀娟

     

目前状态: 不在线| 写信 |

  • 家园号:1086432
  • 姓名:阮秀娟 [福建 ]
  • 设计师类型:室内设计师
  • 查看详细资料
收起/展开本栏目按照案例性质分类
设计师家园-花样年华

花样年华

2016/9/19
设计师家园-海河大观

海河大观

2016/9/18
设计师家园-富?村?山居

富?村?山居

2016/9/15
设计师家园-LATTE

LATTE

2016/9/15
设计师家园-台灣城市別墅-騎出樂活

台灣城市別墅-騎出樂活

2016/9/14

万新别墅样板间 
标签: 独栋  现代简约  闲静轻松  沉稳庄重   2016/8/11 12:24:20
评论(0)   浏览()  收藏(1) 上一项 上一项      下一项 下一项
案例名称 万新别墅样板间 案例投资总额 200  万元
作者 阮秀娟 设计是否选用 竣工项目案例
设计类型 室内设计 案例类型 别墅
案例所在地 福建  案例面积 800  平方米
所用材料品牌 科勒卫浴,汇注家具及软装
设计说明 A、作品对业主居住需求、生活价值的独特挖掘角度:
如今的生活水平都有了大的提高,再加上接受新事物高了,本案针对老少同堂的家庭
B、作品在环境风格上的设计创新点:
坚持不走设计寻常路,在 更多说明
IMG_3520
万新别墅样板间-阮秀娟的设计师家园-独栋,现代简约,闲静轻松,沉稳庄重
IMG_3565
万新别墅样板间-阮秀娟的设计师家园-独栋,现代简约,闲静轻松,沉稳庄重
IMG_3567
万新别墅样板间-阮秀娟的设计师家园-独栋,现代简约,闲静轻松,沉稳庄重
IMG_3568
万新别墅样板间-阮秀娟的设计师家园-独栋,现代简约,闲静轻松,沉稳庄重
IMG_3569
万新别墅样板间-阮秀娟的设计师家园-独栋,现代简约,闲静轻松,沉稳庄重
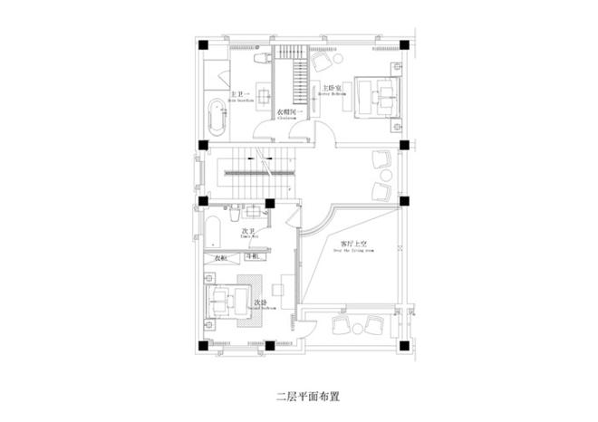
万新平面1
万新别墅样板间-阮秀娟的设计师家园-独栋,现代简约,闲静轻松,沉稳庄重
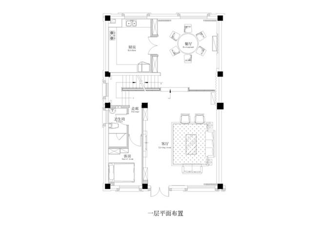
万新平面2
万新别墅样板间-阮秀娟的设计师家园-独栋,现代简约,闲静轻松,沉稳庄重
万新平面3
万新别墅样板间-阮秀娟的设计师家园-独栋,现代简约,闲静轻松,沉稳庄重
万新平面4
万新别墅样板间-阮秀娟的设计师家园-独栋,现代简约,闲静轻松,沉稳庄重
万新平面5
万新别墅样板间-阮秀娟的设计师家园-独栋,现代简约,闲静轻松,沉稳庄重
万新汤泉别墅001
万新别墅样板间-阮秀娟的设计师家园-独栋,现代简约,闲静轻松,沉稳庄重
万新汤泉别墅002
万新别墅样板间-阮秀娟的设计师家园-独栋,现代简约,闲静轻松,沉稳庄重
万新汤泉别墅003
万新别墅样板间-阮秀娟的设计师家园-独栋,现代简约,闲静轻松,沉稳庄重
万新汤泉别墅006
万新别墅样板间-阮秀娟的设计师家园-独栋,现代简约,闲静轻松,沉稳庄重
万新汤泉别墅007
万新别墅样板间-阮秀娟的设计师家园-独栋,现代简约,闲静轻松,沉稳庄重
万新汤泉别墅008
万新别墅样板间-阮秀娟的设计师家园-独栋,现代简约,闲静轻松,沉稳庄重
万新汤泉别墅009
万新别墅样板间-阮秀娟的设计师家园-独栋,现代简约,闲静轻松,沉稳庄重
万新汤泉别墅012
万新别墅样板间-阮秀娟的设计师家园-独栋,现代简约,闲静轻松,沉稳庄重
万新汤泉别墅013
万新别墅样板间-阮秀娟的设计师家园-独栋,现代简约,闲静轻松,沉稳庄重
万新汤泉别墅014
万新别墅样板间-阮秀娟的设计师家园-独栋,现代简约,闲静轻松,沉稳庄重
万新汤泉别墅015
万新别墅样板间-阮秀娟的设计师家园-独栋,现代简约,闲静轻松,沉稳庄重
万新汤泉别墅017
万新别墅样板间-阮秀娟的设计师家园-独栋,现代简约,闲静轻松,沉稳庄重
万新汤泉别墅018
万新别墅样板间-阮秀娟的设计师家园-独栋,现代简约,闲静轻松,沉稳庄重
万新汤泉别墅021
万新别墅样板间-阮秀娟的设计师家园-独栋,现代简约,闲静轻松,沉稳庄重
万新汤泉别墅023
万新别墅样板间-阮秀娟的设计师家园-独栋,现代简约,闲静轻松,沉稳庄重
万新汤泉别墅025
万新别墅样板间-阮秀娟的设计师家园-独栋,现代简约,闲静轻松,沉稳庄重
万新汤泉别墅026
万新别墅样板间-阮秀娟的设计师家园-独栋,现代简约,闲静轻松,沉稳庄重
万新汤泉别墅028
万新别墅样板间-阮秀娟的设计师家园-独栋,现代简约,闲静轻松,沉稳庄重

我的更多案例
设计师家园-万新别墅样板间 设计师家园-不一样的混搭
匿名:
验证码: 点击换一个!    
案例评论
共1页     首页  上一页    1  下一页  末页