易装修搜索
  建案例 传图片写文章 登陆  |  注册  |  帮助   
   ·KUMO KUMO新总部办公空间        ·中国国际家具展览会30周年启幕        ·米兰国际家具展│构建面向未来的世界        ·北京——板泉之野民宿与营地        ·奥地利Gro?weikersdorf社区中心        ·提高空间灵活性,激发市民自豪感        ·Mayora总部食堂,在花园中就餐        ·[最新]声学遇见美学大赛启动        ·[最新]工厂造零件现场拼房子        ·[最新]多地推进住宅"上保险"    
由伟壮设计---李健的设计师家园-李健

     

目前状态: 不在线| 写信 |

  • 家园号:1062629
  • 姓名:李健 [江苏 ]
  • 设计师类型:室内设计师
  • 查看详细资料
收起/展开本栏目按照案例性质分类

我们的地中海 
标签: 住宅样板间  地中海  白色  蓝色   2016/8/11 19:31:16
评论(0)   浏览()  收藏(0) 上一项 上一项      下一项 下一项
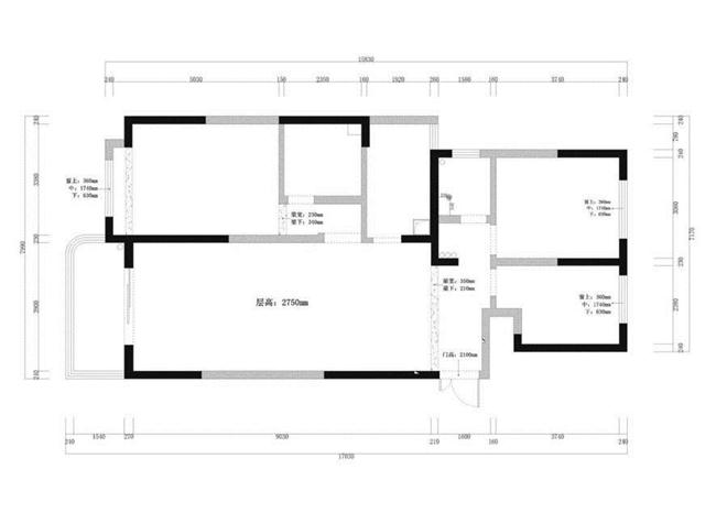
案例名称 我们的地中海 案例投资总额 58  万元
作者 李健 设计是否选用 竣工项目案例
设计类型 室内设计 案例类型 样板间/售楼处
案例所在地 江苏  案例面积 120  平方米
所用材料品牌 汉诺地板,伊派瓷砖,欧派橱柜,翁布里亚定制家具,尼尔洛移门衣柜,意大利威罗艺术涂料
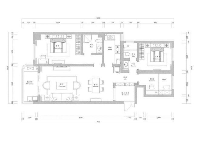
设计说明 A、作品对城市需求与价值的独特挖掘角度:
通过对户型改造 此次样板房推出之后 对楼房的售出 起到很关键作用
B、作品在环境风格上的设计创新点:
地中海与美式的巧妙混搭
C、作 更多说明
fc125f22ad114a46bd67684b2405e8870561daba-9
我们的地中海-李健的设计师家园-住宅样板间,地中海,白色,蓝色
199a9f49055504193e46238890f35cfe36eccaea-9
我们的地中海-李健的设计师家园-住宅样板间,地中海,白色,蓝色
20150913-由伟壮设计-李健-常熟湖畔现代城-大图-1
我们的地中海-李健的设计师家园-住宅样板间,地中海,白色,蓝色
20150913-由伟壮设计-李健-常熟湖畔现代城-大图-2
我们的地中海-李健的设计师家园-住宅样板间,地中海,白色,蓝色
20150913-由伟壮设计-李健-常熟湖畔现代城-大图-3
我们的地中海-李健的设计师家园-住宅样板间,地中海,白色,蓝色
20150913-由伟壮设计-李健-常熟湖畔现代城-大图-4
我们的地中海-李健的设计师家园-住宅样板间,地中海,白色,蓝色
20150913-由伟壮设计-李健-常熟湖畔现代城-大图-5
我们的地中海-李健的设计师家园-住宅样板间,地中海,白色,蓝色
20150913-由伟壮设计-李健-常熟湖畔现代城-大图-6
我们的地中海-李健的设计师家园-住宅样板间,地中海,白色,蓝色
20150913-由伟壮设计-李健-常熟湖畔现代城-大图-7
我们的地中海-李健的设计师家园-住宅样板间,地中海,白色,蓝色
20150913-由伟壮设计-李健-常熟湖畔现代城-大图-9
我们的地中海-李健的设计师家园-住宅样板间,地中海,白色,蓝色
20150913-由伟壮设计-李健-常熟湖畔现代城-大图-10
我们的地中海-李健的设计师家园-住宅样板间,地中海,白色,蓝色
20150913-由伟壮设计-李健-常熟湖畔现代城-大图-11
我们的地中海-李健的设计师家园-住宅样板间,地中海,白色,蓝色
20150913-由伟壮设计-李健-常熟湖畔现代城-大图-12
我们的地中海-李健的设计师家园-住宅样板间,地中海,白色,蓝色
20150913-由伟壮设计-李健-常熟湖畔现代城-大图-13
我们的地中海-李健的设计师家园-住宅样板间,地中海,白色,蓝色
20150913-由伟壮设计-李健-常熟湖畔现代城-大图-14
我们的地中海-李健的设计师家园-住宅样板间,地中海,白色,蓝色
20150913-由伟壮设计-李健-常熟湖畔现代城-大图-16
我们的地中海-李健的设计师家园-住宅样板间,地中海,白色,蓝色
20150913-由伟壮设计-李健-常熟湖畔现代城-大图-17
我们的地中海-李健的设计师家园-住宅样板间,地中海,白色,蓝色

我的更多案例
设计师家园-我们的地中海 设计师家园-秋之梦 设计师家园-悄然倾城 设计师家园-花火瞬间
匿名:
验证码: 点击换一个!    
案例评论
共1页     首页  上一页    1  下一页  末页