地区不限
北京
上海
天津
重庆
安徽
福建
甘肃
广东
广西
贵州
海南
河北
河南
黑龙江
湖北
湖南
吉林
江苏
江西
辽宁
内蒙古
宁夏
青海
山东
山西
陕西
四川
西藏
新疆
云南
浙江
台湾
香港
澳门
国外
类型不限
建筑设计师
室内设计师
景观设计师
其他个人会员
建筑设计公司
室内设计公司
景观设计公司
家装公司
公装公司
其他公司
全部设计师
全部设计公司
级别不限
会员
推荐会员
精英设计师
建案例
传图片
写文章
登陆
|
注册
|
帮助
用户名:
密码:
验证码:
自动登陆
(网吧勿用)
免费注册
找回密码
·
KUMO KUMO新总部办公空间
·
中国国际家具展览会30周年启幕
·
米兰国际家具展│构建面向未来的世界
·
北京——板泉之野民宿与营地
·
奥地利Gro?weikersdorf社区中心
·
提高空间灵活性,激发市民自豪感
·
Mayora总部食堂,在花园中就餐
·
[最新]声学遇见美学大赛启动
·
[最新]工厂造零件现场拼房子
·
[最新]多地推进住宅"上保险"
首页
档案
图片
案例
文章
留言
收藏
关注/粉丝
写信
由伟壮设计---花苑的设计师家园
http://1062623.china-designer.com/
委托设计
推荐好友
收藏网址
为了您更好的使用本网站,请您不要禁止javascript。
我的档案
目前状态:
|
|
家园号:1062623
姓名:花苑 [江苏 ]
设计师类型:室内设计师
查看详细资料
在线呼叫
我的案例
展开所有案例
所有案例
(2)
按照案例性质分类
住宅公寓
(1)
别墅
(1)
相关案例
花样年华
2016/9/19
海河大观
2016/9/18
富?村?山居
2016/9/15
LATTE
2016/9/15
台灣城市別墅-騎出樂活
2016/9/14
我的案例
美色生香
标签:
独栋
美式乡村
闲静轻松
简约大气
2016/8/10 16:56:47
评论
(0)
浏览
()
收藏
(2)
上一项
下一项
案例名称
美色生香
案例投资总额
80 万元
作者
花苑
设计是否选用
竣工项目案例
设计类型
室内设计
案例类型
别墅
案例所在地
江苏
案例面积
200 平方米
所用材料品牌
伊奈卫浴,伊派瓷砖,中诚木业
设计说明
A、作品对业主居住需求、生活价值的独特挖掘角度:
作品是时下流行的美式风格,简约大气,实用温馨,体现业主的独特品味,生活是一种心态,当简单成为一种完美 ,时尚成为一种节奏 ,生活便开始优雅 ,外界
更多说明
A、作品对业主居住需求、生活价值的独特挖掘角度:
作品是时下流行的美式风格,简约大气,实用温馨,体现业主的独特品味,生活是一种心态,当简单成为一种完美 ,时尚成为一种节奏 ,生活便开始优雅 ,外界的纷扰,世俗的喧闹,如此微不足道,只简简单单矗立在那。
B、作品在环境风格上的设计创新点:
美式风格,温馨,大气,木制作的深浅搭配更体现出小资的感觉,业主也非常喜欢,后期的软饰搭配也很重要。
C、作品在空间布局上的设计创新点:
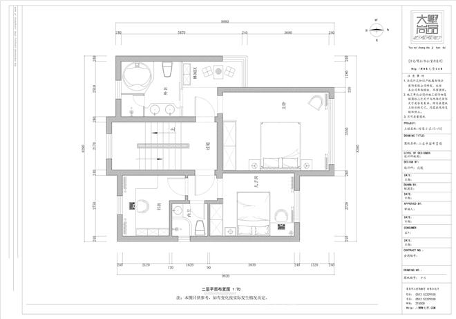
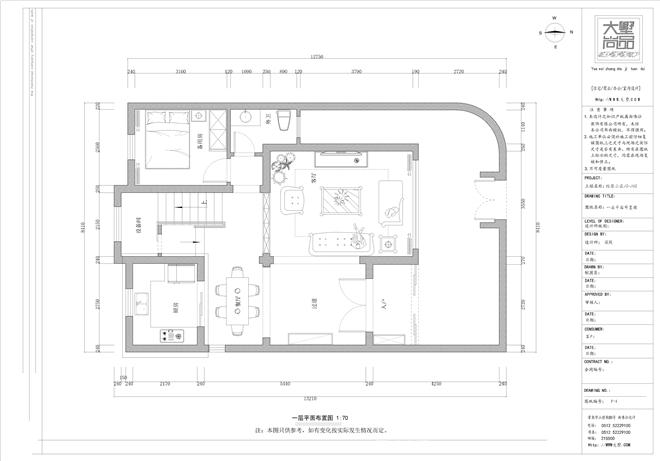
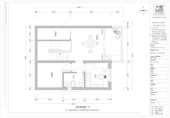
这是一套老小区的别墅,原本的3层层高比较矮,把原顶拆掉重新改造了,所以在3楼上我做了储藏间,书房,休闲区及阳光房,利用空间就更大化了。
D、作品在设计选材上的设计创新点:
选材上追求的是环保绿色,木制作都以实木为主,由于业主儿子有鼻炎,所以家里都没有选择纤维类的地毯。
E、作品在业主使用后的出众效果与评价:
深色系与浅色系的完美融合,诠释了时尚与经典的完美结合 ,淡淡的优雅和柔和的感觉油然而生。有一种空间,它低调、奢华,骨子里透露出浓浓的文人趣味。有一种气质,它自由、开放,处处显露着海纳百川的胸怀。有许多时候,美不是过分的奢华,而是一种真真切切简简单单,是那种让人过目难忘的别致和怦然心动。如果说是奢华,也只能是低调的不事张扬的奢华。
厨房
儿童房
客厅
客厅
客厅
客厅
客厅
客厅
入户
卫生间
玄关
玄关
阳台
主卧
主卧
主卧
主卧
一层平面
二层平面
三层平面
我的更多案例
匿名:
验证码:
案例评论
共1页 首页 上一页
1
下一页 末页
收藏目录
:
全部