易装修搜索
  建案例 传图片写文章 登陆  |  注册  |  帮助   
   ·KUMO KUMO新总部办公空间        ·中国国际家具展览会30周年启幕        ·米兰国际家具展│构建面向未来的世界        ·北京——板泉之野民宿与营地        ·奥地利Gro?weikersdorf社区中心        ·提高空间灵活性,激发市民自豪感        ·Mayora总部食堂,在花园中就餐        ·[最新]声学遇见美学大赛启动        ·[最新]工厂造零件现场拼房子        ·[最新]多地推进住宅"上保险"    
尚伟平-尚伟平

     

目前状态: 不在线| 写信 | 用QQ联系家园主人

  • 家园号:10315
  • 姓名:尚伟平 [北京 ]
  • 设计师类型:室内设计师
  • 查看详细资料

我的文章


西小口家居设计

类别:室内设计随笔   评论(0)   浏览 (182)   2017/4/28  [原创]

标签: 交流  独白  室内饰  设计  

客户因为工作在外地,不能常在北京,所以希望找一位能全程跟踪的设计师。而且不希望那种全包的设计,那样会限制他们的选择。正好看到我的设计,聊完之后很认可,感谢客户的信任。
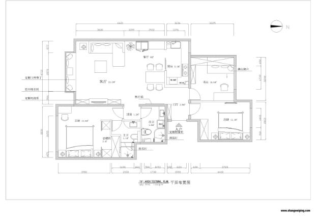
下面是户型图

户型很好,南北通透,难点在与餐厅的设计。下面是照片

 

客厅 很多管道 开发商加了中央空调和新风,以后这也是趋势啦

 

门厅

 

餐厅 摆放餐厅位置花了很多心思

 

客厅 没有阳台很遗憾,只能在客厅晾衣服,大件的弄个隐形晾衣绳子解决。飘窗就做成大大的卡座啦。
下面是客户写的设计要求
业主基本情况介绍:
1. 男87年生人,女88年生人
2. 职业:外企职员
3. 爱好:爱好旅游,每年都会出国玩两次
·家庭成员(入住人员):
现在主要居住为业主夫妇二人,近一两年准备要孩子,孩子出生以后,两家老人会轮流来长住照看,有孩子以后,家里有可能会请小时工,尽量不住在家里,但不排除偶尔需要住
·整体风格:界于现代简约和美式之间,整体色调明快,希望以白色为主,可以用黑白灰棕金这些色调做对比,洗手间可以接受彩色砖或者彩色漆,比较喜欢宝蓝色系
·材料选择:
环保,环保,环保;希望能在控制预算的情况下尽可能注重环保
家里有地暖,需要帮忙考虑客厅是否需要也用地板?还是用地砖?需要兼顾孩子的安全和舒适度
·空间安排(希望尽可能的增加储物空间)
1. 主卧: 尽量考虑两米宽的床,最低1.8 米(考虑是否可以兼顾美观带床箱的床),房间需要放下婴儿床,同时需要有一个大衣柜,里面可以放下足够多的衣服,衣柜最好能分区,有衬衫区,行李箱区,包区;(是否考虑改造主卫生间的区域,做一个U 型衣柜),主卧还需要有一个梳妆台,是否需要电视可以再考虑,主卧床后面放结婚照
2. 次卧:老人居住,1.8米的床,外加一个衣柜,一个床头柜,需要电视
3. 多功能室:需要有书桌,多功能展示柜(业主收集飞机模型,50cm左右宽度,还可放书什么的),可以考虑放一个类似榻榻米一样的榻,上面可以睡人,平时也可以坐着看看书,下面可以储藏杂物、换季的衣服等
4. 客厅:希望能放下L 型沙发,沙发一定要舒适,合理安排电视柜的位置,电视墙是简单化处理还是将电视嵌在储物陈列柜里(有点担心视觉上混乱)?客厅没有阳台,但希望能留一个位置放晾晒衣物的架子,同时墙上保留可以晾晒衣物的钢丝架
5. 餐厅:平时能容纳四个人左右吃饭,偶尔也能容纳6-8个人吃饭,需要有儿童餐椅的位置,如果是双开门冰箱,是否需要考虑放在餐厅,同时餐厅是否需要储物柜或者酒柜、陈列柜之类的东西?餐厅是否需要卡座?有时候可以简单工作?
6. 主卫生间:如见面沟通的,是否要改造马桶位置,腾出主卧衣柜空间? 考虑淋浴间,干湿分离,淋浴间里需要放下孩子洗澡的浴盆,需要有洗漱台,带镜子,洗漱台也是一个储物空间,可以放卫生纸之类的杂物
7. 客卫:需要有马桶,洗漱台,淋浴间, 同时需要放置一个烘干一体的洗衣机
另外,主卫或者客卫可以考虑能够放一个搭洗好内衣内裤及其简单衣物的地方
8. 玄关:在美观的基础上兼顾实用,需要有挂外衣放鞋的区域,因为鞋比较多所以要考虑鞋柜要尽可能大一些,要能比较容易的放下至少两双长筒靴。同时要能方便换鞋以及出门前整理仪容。

整体空间: 需要有一些空间能放下家里的被褥、凉席, 以及以后孩子放玩具的地方; 客厅沙发后是否可以做一个照片墙,或者选取其他空出来的墙做一个照片墙

 

平面布置图
厨房的门往上挪了,主卫与主卧墙体改动,次卫墙体没有动,考虑到洗衣机放在次卫,墙体挪了马桶也得挪,节省工程量,就没有改次卫。
主卧衣帽间里是70厘米,可以站一个人
书房加了活动地台,平时可以坐人储物,来人入住时,拉出来就是床。就是地台下面加滚轮和滑道即可,这个柜子需要订做

新修改的平面图

 



您还未登陆请您先 登陆 后发表
验证码: 点击换一个!    
文章评论

此专栏暂时还没有人发表评论!

共页     首页  上一页   下一页  末页