客户新买的二手房,原房主经过精心的装修,里面的材料工艺都是很好的,所以这次装修就准备利用原来的装修,基础上再进行设计改造,所以主要是软装为主,局部的装修改造。 难点在于客户有两个小孩,要充分考虑孩子的学习娱乐空间,家里还有很多东西需要收纳,养育孩子的都知道,收纳一定要解决。另外就是环保,客户已经提前订好要用实木家具。 聊过之后客户选择我来设计,谢谢客户的信任。 来看原来房间的照片 |
客厅 采光很好,有很大的阳台,最终定下来做孩子的娱乐阅读区,很喜欢。
看餐厅和门厅的区域
儿童房,两个孩子的卧室,偶尔父母过来小住,也可以休息。所以用高低床,下面是双人床的设计
厨房,用了博洛尼的橱柜,刚装好一年,继续用
过道
次卫生间
主卧室
主卫生间
小区的庭院设计的很漂亮
客户看过的喜欢家具,儿童房床
书桌
一、家庭成员:两个大人、两个男孩(6岁、半岁)、住家阿姨(暂时)、两个老人(白天在,偶尔晚上住宿)。
二、整体要求:1、希望有尽可能多的储物空间,但也不喜欢到处都是柜子的感觉。风格简单大方,不要冷淡风格。
2、尽量注重环保,所以希望尽量减少装饰性装修。
3、孩子的安全。
4、需要考虑书柜、晾衣服区域
5、淡化电视娱乐功能,营造读书学习氛围。
三、具体要求:
客厅:沙发不要太大太浮夸,样式简约。
餐厅:希望有折叠圆桌
厨房:需要增加储物面积
主卧:目前有床(195*210)、衣柜(190*220)、书桌(120*50)需要带过去,并希望再增加一组衣柜。
file:///C:\Users\ADMINI~1\AppData\Local\Temp\ksohtml\wpsE23.tmp.pngfile:///C:\Users\ADMINI~1\AppData\Local\Temp\ksohtml\wpsE24.tmp.pngfile:///C:\Users\ADMINI~1\AppData\Local\Temp\ksohtml\wpsE25.tmp.png
次卧:有两组宜家儿童衣柜(60*50*192)、一个书架(60*30*130)要带过去,希望增加一个写字桌、上下床(下床要150*200)、和衣柜。
file:///C:\Users\ADMINI~1\AppData\Local\Temp\ksohtml\wpsE26.tmp.png
主卫生间:尽量保留洗澡功能。
次卫生间:换洗脸台,增加储物空间放洗漱用品
储藏间:希望有简单的能睡人的地方,同时尽可能多的储物空间。
阳台:安装护栏、内外防水、客厅阳台希望有储物空间,养花区域,家庭活动区;主卧阳台希望有储物空间,并能放台式机。
玄关:希望有挂衣服、换鞋凳,及足够的储存鞋的地方,但是视觉效果不要太厚重。

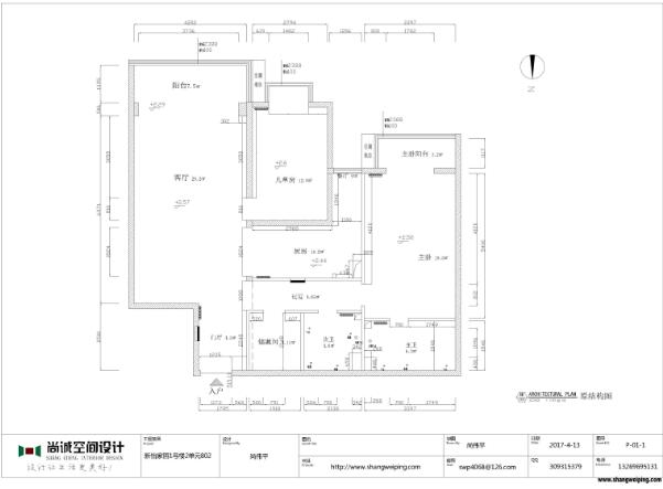
原始结构图

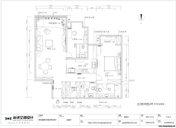
平面布置图
下面是客户修改意见 |
手绘1
手绘2