易装修搜索
  建案例 传图片写文章 登陆  |  注册  |  帮助   
   ·KUMO KUMO新总部办公空间        ·中国国际家具展览会30周年启幕        ·米兰国际家具展│构建面向未来的世界        ·北京——板泉之野民宿与营地        ·奥地利Gro?weikersdorf社区中心        ·提高空间灵活性,激发市民自豪感        ·Mayora总部食堂,在花园中就餐        ·[最新]声学遇见美学大赛启动        ·[最新]工厂造零件现场拼房子        ·[最新]多地推进住宅"上保险"    
尚伟平-尚伟平

     

目前状态: 不在线| 写信 | 用QQ联系家园主人

  • 家园号:10315
  • 姓名:尚伟平 [北京 ]
  • 设计师类型:室内设计师
  • 查看详细资料

我的文章


山西老家装修(3)

类别:室内设计随笔   评论(0)   浏览 (370)   2016/9/8  [原创]

标签: 交流  独白  室内饰  设计  

买了的科勒水盆,型号

 


 

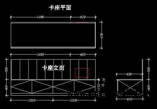
餐厅 背面卡座墙

 

餐厅 这应该是最好的一处 一直到下午2点都有日光

 

厨房 师傅正在测量橱柜 

餐区  

 

儿童房

 


 

父母房

 

主卧室  正在打磨墙面

 

祷告室

 

做了墙体,把衣柜藏进去

 

卫生间 淋浴区


门厅

 

 

 

门厅要定做鞋柜 

 

 

乳胶漆

 

儿童房 进门处 定做书桌 书架

 

卫生间顶面

 

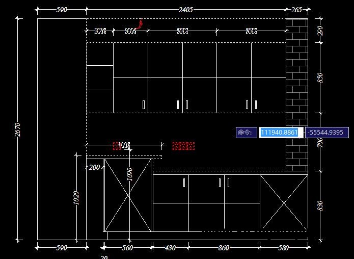
厨房和餐区

 

阳台休闲区

 

主卧过道顶子

 

祷告室顶子

 

插座

 

插座1 

 

 

 

 

 



选了阳台木地板

 

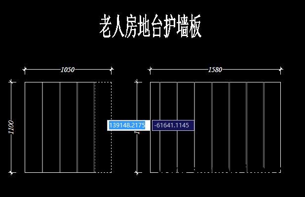
橱柜的样式

 

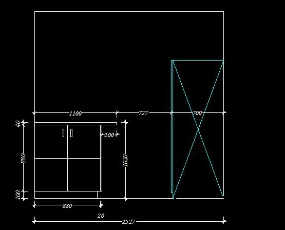
以下是最终版家具图

 

餐桌,橱柜平面

  

橱柜立面图

 

橱柜里面图

立面图

 

吧台立面

 

儿童房

 

衣柜立面图

 

书柜书桌

 

客厅书架

 


 

 

 

 

 

 

 

 

 




您还未登陆请您先 登陆 后发表
验证码: 点击换一个!    
文章评论

此专栏暂时还没有人发表评论!

共页     首页  上一页   下一页  末页