易装修搜索
  建案例 传图片写文章 登陆  |  注册  |  帮助   
   ·KUMO KUMO新总部办公空间        ·中国国际家具展览会30周年启幕        ·米兰国际家具展│构建面向未来的世界        ·北京——板泉之野民宿与营地        ·奥地利Gro?weikersdorf社区中心        ·提高空间灵活性,激发市民自豪感        ·Mayora总部食堂,在花园中就餐        ·[最新]声学遇见美学大赛启动        ·[最新]工厂造零件现场拼房子        ·[最新]多地推进住宅"上保险"    
尚伟平-尚伟平

     

目前状态: 不在线| 写信 | 用QQ联系家园主人

  • 家园号:10315
  • 姓名:尚伟平 [北京 ]
  • 设计师类型:室内设计师
  • 查看详细资料

我的文章


塔院小区装修方案-尚伟平

类别:个人日记   评论(0)   浏览 (241)   2016/6/3  [原创]

标签: 设计  


客户提出家是要住的,那些花里胡哨的配饰,刚看时候漂亮,等用两个月就会放到一边了。设计还是要耐久,实用啊。我说设计师还是要完工作品的,摆些好看的配饰是为了照片,宣传用的。毕竟我们要接新的客户生存啊。呵呵,设计是一个大的方面,材料选好了,耐久实用,也是设计。谁说设计师就是出几张图了事的?这是很大的误解,设计是个苦差事,都要经过长时间的画图,跑工地,谈客户才有可能生存下来,在外表光鲜的背后是残酷的现实。相信客户都知道这点。在一线城市大部分业主还认可设计,在小城市设计就很难认可了,可以说几乎没有设计。
我觉得设计的重要性,首先就是空间布局,家具布置,房间功能搭配。房子大了,怎么都好布置,房子一小,问题就出来了。在北京,现在学区房,为孩子上学考虑的人越来越多,这一类的客户首要的问题就是功能,解决了功能问题才能继续下去。我一个客户说两年前买的学区房6万一平,买的时候是抢的买的,稍微迟延就被别人买了,买的人排着队。今天又碰到一个客户,也说现在的房市太火,业主一天涨10万,再迟一天又涨10万,你爱买不买,不买还有别人买。太疯狂了!
相比而言,我们设计师踏实多了,老老实实的做好工作吧,每天的小事也够做的,挣点辛苦钱而已。稍微不留心,回答客户晚了,还被客户埋怨,认为服务态度不好,希望客户理解,相互理解。
闲话,废话太多,说点正题。声明下,刚才的话可不是说这位客户的,只是借这个地方发发牢骚而已。

客户提到暖气的管子改的很难看

确实,这是工艺问题还是工人审美问题。反正看着太多余

几组暖气都是这样,按道理应该管子直接通到下面,不应该绕半圈的。如果工人多费点心,完全可以不走这么多管。难道暖气也有多走管道多收钱一说?

以前客户问我竹子地板怎么样,如果用5,6年,会出现裂缝,板子会收缩的。大概3毫米,你能接受就用

卫生间洗手盆柜子,五金件不光要结实,还要防锈,五金件不能省,除非你用几年就想换。注明,这还是法恩莎的.




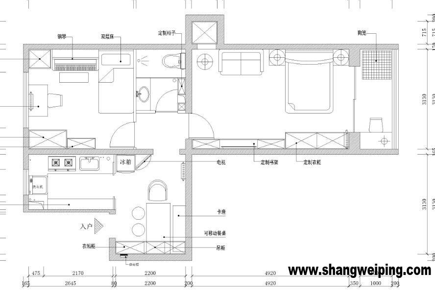
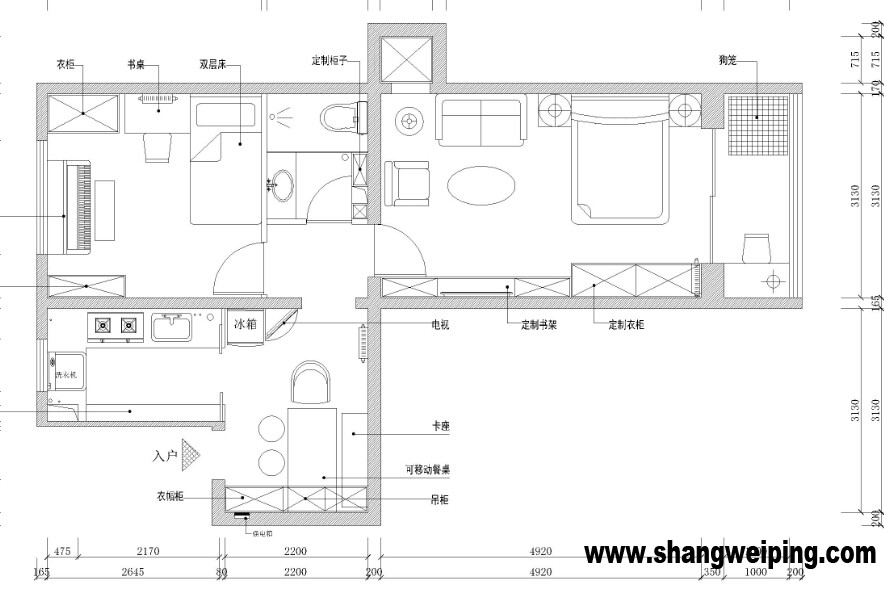
平面布置图


另外几个方案



主要是小孩房的改动




客户补充了一份设计要求

设计风格要实用稳重,拒绝花哨、华而不实。物体尺寸比例要合适,满足日常收纳功能,便于清洁打理。
2、装修材料和定制家具用料质量耐用环保。
3、衣柜满足基本的悬挂要求,其他可以组合收纳,不一定非要在一起,可以分别收纳,把空间感营造出来。
4、双人床宽度1.5米就好,还是希望睡眠区有独立空间感,技能满足睡眠氛围要求,还能避免空间感上视觉混乱干扰。
5、卧室需要考虑空调的安装位置的协调性、暖气片位置的合理性。
6、照明不建议用筒灯、射灯,家居多采用吸顶灯。
7、不做大的水路改造,一旦管道排泄不畅就很麻烦。
8、南卧壁橱怎么处理?如果小门厅有电视机了,就不打算在这里放电视机了,希望孩子和父母之间能够多接触交流,多阅读和游戏。
9、衣柜要到顶吗?还是选择半高度单加大宽度?不知道哪种效果好。
10、、厨房布局,还是希望洗菜、切菜、炒菜,依作业动线顺序排列,来回奔波的结果就是不方便和不整洁,因为带水撒到地面是肯定的,至少洗菜切菜在一起,或者切菜炒菜挨着,灶具能不能放烟道侧

,或者就放在窗户那里,当然放窗户那里,侧吸式吸油烟机是装不成了,就需要检测一下下沉式集成灶具能不能满足需要,厨房还是需要满足各类厨房电器的安放和收纳:

微波炉、电饭煲(带变压器)、豆浆机、高压锅、电饼铛、榨汁机、面包机;还需要考虑米面的收纳拿取,以及其它橱柜的基本收纳功能,冰箱选择小尺寸冰箱。
11、儿童房的双层床,看看是否可以把梯柜与床并排,这样总长可以控制在2米,宽度可以控制在1.6米~1。8米之间。窗床体可以选1米宽,梯柜大约0.5米宽。
12、卫生间先考虑洗衣机能放进去吗,其次马桶洗浴靠里,不需要全隔断吧?浴帘、半玻璃隔断或者其他?不要有水汽凝聚后有打扫的死角,地面有清洁死角。
13、不要有太多的开放式柜子或者隔板,会在外观上显得乱,小门厅的电视还是悬挂在墙上比较好,甚至可以考虑投影设备,要有贴在墙上的穿衣镜,还能营造出空间感。
14、儿童房放置梯柜式双层床、书架、衣柜、书桌(1米宽),其次再考虑钢琴(尺寸未知)。



您还未登陆请您先 登陆 后发表
验证码: 点击换一个!    
文章评论

此专栏暂时还没有人发表评论!

共页     首页  上一页   下一页  末页