地区不限
北京
上海
天津
重庆
安徽
福建
甘肃
广东
广西
贵州
海南
河北
河南
黑龙江
湖北
湖南
吉林
江苏
江西
辽宁
内蒙古
宁夏
青海
山东
山西
陕西
四川
西藏
新疆
云南
浙江
台湾
香港
澳门
国外
类型不限
建筑设计师
室内设计师
景观设计师
其他个人会员
建筑设计公司
室内设计公司
景观设计公司
家装公司
公装公司
其他公司
全部设计师
全部设计公司
级别不限
会员
推荐会员
精英设计师
建案例
传图片
写文章
登陆
|
注册
|
帮助
用户名:
密码:
验证码:
自动登陆
(网吧勿用)
免费注册
找回密码
·
KUMO KUMO新总部办公空间
·
中国国际家具展览会30周年启幕
·
米兰国际家具展│构建面向未来的世界
·
北京——板泉之野民宿与营地
·
奥地利Gro?weikersdorf社区中心
·
提高空间灵活性,激发市民自豪感
·
Mayora总部食堂,在花园中就餐
·
[最新]声学遇见美学大赛启动
·
[最新]工厂造零件现场拼房子
·
[最新]多地推进住宅"上保险"
首页
档案
图片
案例
文章
留言
收藏
关注/粉丝
写信
颜旭的设计师家园
http://1011158.china-designer.com/
委托设计
推荐好友
收藏网址
为了您更好的使用本网站,请您不要禁止javascript。
我的档案
目前状态:
|
|
家园号:1011158
姓名:颜旭 [江苏 ]
设计师类型:室内设计师
查看详细资料
在线呼叫
我的案例
展开所有案例
所有案例
(4)
按照案例性质分类
住宅公寓
(3)
相关案例
【 “狮力扑sleep床垫”的设计 】
2016/9/15
昆明港邑珠宝店(彩钻店)
2016/9/14
石家庄富奥斯门店
2016/9/14
开开木门石家庄旗舰店
2016/9/14
知酒空间
2016/9/14
我的案例
南京1912街区2号楼
标签:
展示空间 董龙 设计
2012/8/31 17:10:20
评论
(1)
浏览
()
收藏
(2)
上一项
下一项
案例名称
南京1912街区2号楼
案例投资总额
150 万元
作者
颜旭
设计是否选用
竣工项目案例
设计类型
室内设计
案例类型
购物空间
案例所在地
江苏
案例面积
700 平方米
所用材料品牌
木丝板、美岩板、欧松板、硅藻泥、实心成型钢材、超白磨砂玻璃、黑钛、黑木
设计说明
A、作品对城市需求与价值的独特挖掘角度:SNIPES(思耐普)是全球最大的运动、休闲、街头潮流风格多品牌集成店。
此案例(南京1912街区2号楼)是它在中国的第一家街店,其他均以高端商场专卖店形式
更多说明
A、作品对城市需求与价值的独特挖掘角度:SNIPES(思耐普)是全球最大的运动、休闲、街头潮流风格多品牌集成店。
此案例(南京1912街区2号楼)是它在中国的第一家街店,其他均以高端商场专卖店形式存在。一方面,它将成为这个多品牌集成店在整个中国地区的第一个标志性展示场所,另一方面,后场的VIP会所也是国外众多品牌供应商在中国大陆地区的落脚点。
B、作品在环境风格上的设计创新点:服饰售卖区以休闲风格为主,VIP展示区更强调时尚感和科技感,会所位置则完全是与外建筑相结合的新东方风格。各个环境因功用的不同而侧重点不一样,空间与空间之间运用楼梯景墙与画廊等造型完成自然的联会贯通。
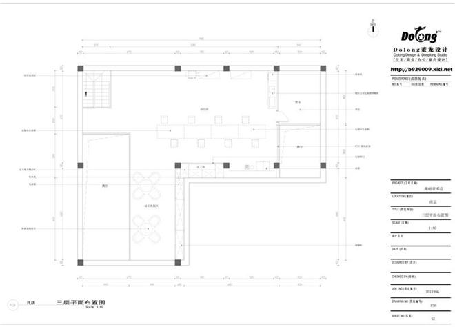
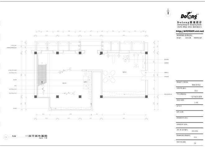
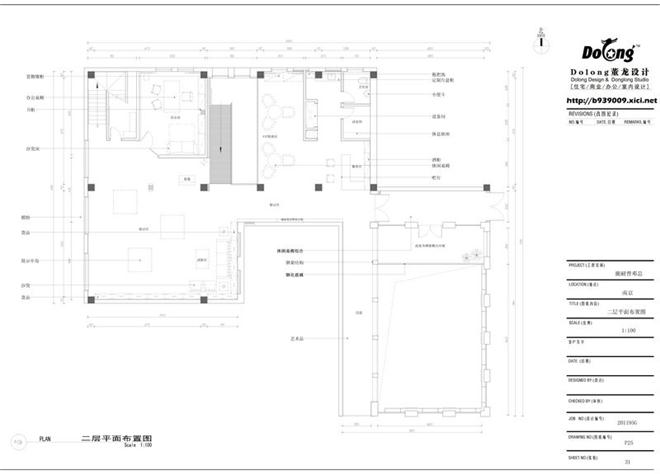
C、作品在空间布局上的设计创新点:原建筑是民国时期的老式斜顶洋房,共三层,本案只占用其中的一部分面积,不工整,并且楼上楼下是错落的。就着原建筑结构,楼梯位置和斜顶部分从最难点变成设计中最精彩的部分。
D、作品在设计选材上的设计创新点: 空间整体是时尚的,但材质的运用充满了东方的气息。大面积使用木丝板、美岩板与黑木纹石材做底,实心成型钢材雕刻出水滴纹样,玻璃道具的虚实感,都自然的融入了东方元素。
E、作品在投入运营后的出众效果与评价:空间不仅仅向国人展示西方服饰潮流,同时利用南京总统府旧址的建筑特色与内部空间的完美结合,也为国外供应商展现东方文化的美。融合了东西方文化的商业空间所提供的文化交流与推广活动平台才是本案例的设计诉求。
1912街区 加标 (1)
1912街区 加标 (2)
1912街区 加标 (3)
1912街区 加标 (4)
1912街区 加标 (5)
1912街区 加标 (6)
1912街区 加标 (7)
1912街区 加标 (8)
1912街区 加标 (9)
1912街区 加标 (10)
1912街区 加标 (11)
1912街区 加标 (12)
1912街区 加标 (13)
1912街区 加标 (14)
1912街区 加标 (15)
1912街区 加标 (16)
1912街区 加标 (17)
1912街区 加标 (18)
1912街区 加标 (19)
1912街区 加标 (20)
nEO_IMG_2
nEO_IMG_3
nEO_IMG_1
我的更多案例
匿名:
验证码:
案例评论
设计师家园总管
[设计师] 2012/9/6 22:46:47
恭喜您,此项目已入选china-designer优秀案例库,即日起7日内在网站首页热点推荐文字区随机出现,同时将长期在china-designer优秀案例库中展示,也将有机会入选网站系列图书。期待您更多的佳作。
家园主人的回复:
共1页 首页 上一页
1
下一页 末页
收藏目录
:
全部